| CATEGORII DOCUMENTE |
| Arhitectura | Auto | Casa gradina | Constructii | Instalatii | Pomicultura | Silvicultura |
CONSTRUCTII CIVILE CU STRUCTURA METALICA
1. DESCRIEREA STRUCTURII ANALIZATE
S-a analizat o structura (fig. 1) cu regim de inaltime P + 9E care are destinatia de magazin universal, cu trama de 8,0 m x 6,0 m si incarcare utila pe planseu de 3 kN/m2.
Cladirea are 3 deschideri de 8,0 m si 7 travei de 6,0 m. {naltimea de nivel este constanta pe toata inaltimea constructiei, fiind de 4,0 m. Solutia constructiva este de tip dual, fiind alcatuita pe directie transversala din cadre contravantuite excentric si cadre necontravantuite, iar pe directie longitudinala din cadre cu contravantuiri in X si cadre necontravantuite (vezi fig. 1 b, c). Stalpii au sectiune dublu T simetrica ce variaza pe inaltime (creandu-se astfel trei tronsoane), avand rigiditatea maxima in planul cadrului transversal. Grinzile au sectiunea dublu T, fiind prinse rigid de stalpi. S-au ales doua sectiuni de grinzi pe inaltimea constructiei, profilele mai mari fiind prevazute la primele cinci nivele.
Pe directia longitudinala au fost prevazute grinzi secundare, amplasate la capetele barelor disipative in deschiderile contravantuite si la 2,0 m interax, in deschiderile fara contravantuiri (vezi fig.1 a). Contravantuirile au fost realizate din profile U laminate la cald si au trei trepte de variatie pe verticala.
Structura a fost studiata in 16 variante dimensionale si constructive, prezentate in tab. 2.

Fig. 1 - Structura P + 9E
a) vedere in plan, b) cadre transversale, c) cadre longitudinale
2. ETAPELE DE CALCUL
Evaluarea incarcarilor si maselor.
Predimensionarea elementelor structurii, considerata omogena, pe baza experientei de proiectare si a unor relatii simplificate de determinare a starii de eforturi si deformatii.
Analiza modala pe structura spatiala omogena. Rezulta caracteristicile dinamice ale structurii:
- perioade proprii de vibratie;
- vectori si valori proprii;
- factorii de participare a maselor;
- coeficientul de echivalenta intre sistemul real si un sistem cu un singur grad de libertate dinamica.
Pe baza caracteristicilor dinamice, cele mai multe programe de calcul stabilesc valorile si distributia incarcarilor orizontale echivalente din actiunea seismica.
Calculul static liniar considerand structura omogena. Cu
incarcarile determinate la pct. si se face un calcul spatial in domeniul elastic pentru cel putin
cinci ipoteze de incarcare pentru structurile disipative (
<1,0):
- doua ipoteze de incarcare in gruparea fundamentala: incarcari de calcul (S.L.U.), incarcari normate (S.L.E.N.), rel. (1) si (2).
pentru verificarea starilor limita ultime
(1)
pentru verificarea starilor limita ale exploatarii normale :
(2)
- trei ipoteze de incarcare in gruparea speciala: o ipoteza rel. (3) conform gruparii speciale din STAS 10101/0A-77 si doua ipoteze conform gruparilor suplimentare, vezi rel. (4) si (5).
pentru verificarea starilor limita ultime :
(3)
Combinatiile suplimentare de incarcari (fata de gruparea speciala de incarcari din STAS 10101/0A-77) care contin incarcari seismice orizontale majorate sunt :
(4)
(5)
Termenul
este factorul de
sporire a incarcarilor din actiunea seismica.
{n cazul structurilor nedisipative (
=1,0) sunt practic necesare numai trei ipoteze de
incarcari:
- doua ipoteze in gruparea fundamentala, rel. (1) si (2);
- o ipoteza in gruparea speciala (conf. STAS 10101/0A-77), rel. (3).
Calculul static neliniar considerand structura omogena.
{ncarcarile gravitationale din gruparea speciala sunt mentinute constante iar
incarcarea seismica stabilita la pct. (3)
creste monoton pana la atingerea deplasarii orizontale maxime, acceptate de
norma dupa care se proiecteaza constructia. Cresterea monotona a incarcarilor
seismice va continua si dupa depasirea valorii limita a deplasarii orizontale
pana la atingerea coeficientului
(tab. 1),
amplificat cu 1,2
1,5. Aceasta
crestere este necesara pentru a putea compara energia disipata de structura cu
cea indusa de seism. Aceasta etapa de calcul se aplica numai structurilor
disipative (
<1,0).
{n aceasta etapa de calcul sunt evidentiate urmatoarele aspecte:
- ordinea formarii articulatiilor plastice si distributia acestora pe structura. S-a evitat formarea articulatiilor plastice in stalpi, cu exceptia bazelor acestora si pe zonele de grinda adiacente barelor disipative.
Tabel 1
|
FACTORUL DE
SPORIRE A {NCARCARILOR DIN ACTIUNEA SEISMICA |
|
Sistemul care preia fortele seismice |
|
|
Toate cadrele necontravantuite care intrunesc cerintele constructive si de ductilitate | |
|
Cadrele cu contravantuiri prinse excentric la noduri care intrunesc cerintele constructive si de ductilitate | |
|
Toate celelalte sisteme care intrunesc cerintele constructive si de ductilitate | |
Dirijarea articulatiilor plastice in elementele si zonele conformate in acest scop s-a realizat astfel:
la cadre necontravantuite, prin " jocul " rigiditatilor grinda - stalp;
la cadrele contravantuite excentric, prin marirea sectiunii zonelor adiacente barelor disipative si daca este cazul, si a stalpilor. Un efect favorabil se poate obtine si prin marirea sectiunii diagonalelor, care conduce la o crestere a rigiditatii de ansamblu a structurii.
- rotirea barelor la noduri. S-a urmarit incadrarea rotirilor in limitele admise pentru fiecare tip de bara disipativa sau zona disipativa. Rotirile maxime admisibile au aceleasi valori, practic in toata literatura tehnica de specialitate. Pentru incadrarea in limitele admisibile ale rotirilor se mareste rigiditatea de ansamblu a structurii.
- energia disipata prin incursiuni in
domeniul elasto - plastic. Prin analiza energiei disipate se poate stabili, cu
un anumit nivel de aproximare, daca structura a fost corect conformata pentru a
disipa energia considerata la alegerea coeficientului
de reducere a actiunii seismice. O metodologie simpla
de evaluare a energiei disipate si a coeficientului
este prezentata in continuare.
Calculul dinamic liniar pe structura omogena. Se folosesc
masele si incarcarile gravitationale
din gruparea speciala calculate la (1).
Aceasta etapa de calcul are un caracter orientativ pentru structurile
disipative
<1,0 si constituie
metoda de dimensionare in cazul structurilor la care nu se poate considera
disiparea enegiei
=1,0. La aceste structuri toate elementele componente vor
ramane in domeniul elastic pe toata durata seismului. Calculul se face cu
ajutorul a diferite accelerograme si ar fi ideal daca s-ar putea utiliza
accelerograma amplasamentului. Deplasarea maxima a structurilor nedisipative (
=1,0) va respecta limitarile impuse structurilor
disipative.
(6a) Calculul dinamic liniar pe structura cu grinzi compozite. Aceasta
etapa se aplica numai structurilor nedisipative (
=1,0). {nlocuirea grinzilor omogene cu grinzi compozite
se face astfel incat capacitatea portanta a grinzii compozite pe reazem sa fie
cel putin egala cu capacitatea portanta a grinzii omogene. Se
aplica procedeul de echivalare a sectiunii placii de beton cu o placa metalica.
Echivalarea sectiunii placii din beton cu o placa metalica se face reducand
latimea activa bef a placii de beton la o latime metalica
echivalenta bech, grosimea ramanand neschimbata (v. fig. 2):
(6)
in care :
Eb - este modulul de elasticitate secant al betonului
Em - este modulul de elasticitate al otelului
Fig. 2 - Echivalarea sectiunii grinzii compozite cu o sectiune de grinda omogena
Calcul dinamic neliniar considerand structura omogena. Se folosesc
masele si incarcarile gravitationale din gruparea speciala calculate la (1). Se urmareste comportarea
structurii sub actiunea dinamica, folosind accelerograme de amplasament si
accelerogramele seismelor anterioare. Se considera o comportare
corespunzatoare, daca articulatiile plastice apar in principal in elementele si zonele
disipative, special amplasate in structura. Nu se recomanda formarea
articulatiilor plastice pe stalpi si nu se accepta formarea articulatiilor plastice in barele adiacente barei
disipative. Se accepta formarea articulatiilor plastice la bazele stalpilor si
la capatul superior al stalpului de la ultimul nivel. Se va urmari ca valorile
deplasarilor relative de nivel si a rotirilor barelor, sa se incadreze in
limitele acceptate de norme. {n cazul in care apar abateri de la aceste cerinte, se
va mari rigiditatea de ansamblu a structurii prin marirea sectiunii
stalpilor si eventual a grinzilor, cu conditia ca dupa refacerea calculului
dinamic sa nu se formeze articulatii plastice in stalpi. Calculul dinamic
neliniar se poate efectua pe "tren" de cadre plane, punandu-se conditia de deplasari egale ale cadrelor, simuland astfel
conlucrarea spatiala asigurata de planseele din beton. Perioada proprie
de vibratie a trenului de cadre, va fi apropriata de cea a structurii spatiale,
putand diferii cu maxim 10
12%.
(7a) Calculul dinamic neliniar pe structura cu grinzi compozite. {nlocuirea
grinzilor omogene cu grinzi compozite se face astfel incat momentul capabil
plastic negativ al grinzii compozite (
) sa fie egal cu momentul capabil plastic al grinzii
metalice (
) omogene. Se aplica procedeul de echivalare a
caracteristicilor geometrice ale sectiunii compozite stabilit la pct. (6.a).
Barele disipative se considera cu sectiune omogena si fara incarcari pe
lungimea acestora, motiv pentru care, prin solutii
constructive, se va separa placa de beton armat de grinda metalica. Pe
respectivele zone nu se prevad conectori si se intercaleaza materiale (folii)
care sa permita lunecarea dintre zona disipativa metalica si placa din beton.
Se prevad grinzi secundare la capetele barelor si zonelor disipative care
asigura stabilitatea generala a acestor zone si in acelasi timp conduc
incarcarile la capetele zonelor potential plastice. Conditiile privind
comportarea elementelor componente ale structurii, deplasarea relativa de nivel
si rotirile barelor sunt cele mentionate la (7). Pentru conformarea structurii,
se vor folosi accelerograme ale seismelor anterioare din zona din care face
parte amplasamentul, precum si accelerograme sintetice, care vor respecta
caracteristicile dinamice ale accelerogramei cunoscute pentru zona respectiva.
Se recomanda utilizarea si a altor accelerograme inregistrate pe amplasamente
diverse, pentru a putea mari gradul de asigurare a constructiei, in
eventualitatea aparitiei pe amplasamentul studiat a unor seisme care se produc
la adancimi diferite sau cu epicentre diferite. Pentru o constructie, se
folosesc minim 3 accelelograme, dintre care una sintetica. Prin calculul
dinamic neliniar se urmareste comportarea de ansamblu a structurii, distributia
articulatiei plastice in structura si totodata se analizeaza daca deplasarile
si rotirile de baza se incadreaza in limitele acceptabile. Se pot accepta
rotiri ale barelor mai mari decat cele prescrise in standarde numai daca, prin
incercari experimentale, se poate demonstra ca bara sau zona disipativa poate
sa dezvolte o asemenea rotire, fara a se produce pierderi de stabilitati
locale. {n mod uzual, intr-un calcul dinamic neliniar, o rotire de 0,1 rad. la
o bara disipativa scurta poate fi acceptata. Principiul stabilit pentru
calculul neliniar se respecta cu aceeasi rigoare si in cazul calculului dinamic
neliniar in sensul ca nu se accepta formarea de articulatii plastice pe stalpi,
in grinzile adiacente barelor disipative si in diagonalele cadrelor
contravantuite excentric la noduri. Prin calculul dinamic neliniar se urmareste
totodata comportarea de ansamblu a constructiei, in sensul conformarii acesteia
astfel incat minim 25% din forta taietoare de baza sa fie preluata de cadrele
necontravantuite.
Tabel 2
|
VARIANTELE STUDIATE PENTRU STRUCTURA P+9E |
||||||||||
|
Nr. |
Bara disipativa(B.D.) |
Grinda adiacenta barei disipative (G.A.B.D.) |
Grinzile cadrelor necontra-vantuite (G.C.N.) |
Perioada proprie de vibratie T1 |
||||||
|
crt. |
Clasifi- care |
Mate- rial |
Secti- une |
Mate- rial |
Secti- une |
Mate- rial |
Secti- une |
( s ) |
||
|
BDSR |
Metal |
HEA 600 |
Metal |
HEA 600 | ||||||
|
HEA 550 |
HEA 550 | |||||||||
|
Metal |
HEA 600 |
Metal |
HEA 600 | |||||||
|
BDSR |
HEA 450 |
HEA 550 |
HEA 550 | |||||||
|
Scurta |
Metal |
HEA 400 |
Beton |
hb = 150 |
Beton |
hb = 150 | ||||
|
|
Metal |
HEA 500 |
Metal |
HEA 500 | ||||||
|
BDSR |
HEA 450 |
HEA 450 | ||||||||
|
Beton |
hb = 150 |
Beton |
hb = 150 | |||||||
|
Metal |
HEA 600 |
Metal |
HEA 600 | |||||||
|
BDSR |
Metal |
HEA 450 |
HEA 550 |
HEA 550 | ||||||
|
|
HEA 400 |
Beton |
hb = 150 |
Beton |
hb = 150 | |||||
|
Beton |
hb = 150 |
Metal |
HEA 500 |
Metal |
HEA 500 | |||||
|
BDSR |
HEA 450 |
HEA 450 | ||||||||
|
Beton |
hb = 150 |
Beton |
hb = 150 | |||||||
|
BDSM |
Metal |
HEA 600 |
Metal |
HEA 600 | ||||||
|
Scurta |
HEA 600 |
HEA 550 |
HEA 550 | |||||||
|
|
Metal |
HEA 550 |
Metal |
HEA 600 |
Metal |
HEA 600 | ||||
|
BDSM |
HEA 550 |
HEA 550 | ||||||||
|
Beton |
hb = 150 |
Beton |
hb = 150 | |||||||
|
Metal |
HEA 600 |
Metal |
HEA 600 |
Metal |
HEA 600 | |||||
|
BDSM |
HEA 550 |
HEA 550 |
HEA 550 | |||||||
|
Beton |
hb = 150 |
Beton |
hb = 150 |
Beton |
hb = 150 | |||||
|
BDLR |
Metal |
HEA 600 |
Metal |
HEA 600 | ||||||
|
HEA 550 |
HEA 550 | |||||||||
|
Metal |
HEA 600 |
Metal |
HEA 600 | |||||||
|
BDLR |
HEA 500 |
HEA 550 |
HEA 550 | |||||||
|
Lunga |
Metal |
HEA 450 |
Beton |
hb = 120 |
Beton |
hb = 120 | ||||
|
Metal |
HEA 500 |
Metal |
HEA 500 | |||||||
|
BDLR |
|
HEA 450 |
HEA 450 | |||||||
|
Beton |
hb = 150 |
Beton |
hb = 150 | |||||||
|
Metal |
HEA 600 |
Metal |
HEA 600 | |||||||
|
BDLR |
Metal |
HEA 500 |
HEA 550 |
HEA 550 | ||||||
|
HEA 450 |
Beton |
hb = 120 |
Beton |
hb = 120 | ||||||
|
Beton |
hb = 120 |
Metal |
HEB 500 |
Metal |
HEA 500 | |||||
|
BDLR |
HEB 450 |
HEA 450 | ||||||||
|
Beton |
hb = 120 |
Beton |
hb = 120 | |||||||
|
BDLM |
Metal |
HEB 600 |
Metal |
HEA 600 | ||||||
|
Lunga |
HEB 550 |
HEA 550 | ||||||||
|
|
Metal |
HEB 600 |
Metal |
HEA 600 | ||||||
|
BDLM |
Metal |
HEA 600 |
HEB 550 |
HEA 550 | ||||||
|
HEA 550 |
Beton |
hb = 120 |
Beton |
hb = 120 | ||||||
|
Metal |
HEA 600 |
Metal |
HEB 600 |
Metal |
HEA 600 | |||||
|
BDLM |
HEA 550 |
HEB 550 |
HEA 550 | |||||||
|
Beton |
hb = 150 |
Beton |
hb = 120 |
Beton |
hb = 120 | |||||
Tabel 2 (continuare)
|
Notatii folosite in tabel : BDSR - bara disipativa scurta cu sectiune mai mica decat agrinzilor deschiderilor adiacente BDSM - bara disipativa scurta cu sectiune egala cu cea a grinzilor din deschiderile adiacente BDLR - bara disipativa lunga cu sectiune mai mica decat agrinzilor deschiderilor adiacente BDLM - bara disipativa lunga cu sectiune egala cu cea a grinzilor din deschiderile adiacente Metal - sectiune omogena Metal + Beton - sectiune compozita |
3. MODUL DE TESTARE AL STRUCTURILOR
Analiza modala si calculul static liniar au fost efectuate pe structura spatiala omogena, cu programul de calcul SPAN (elaborat de UTCB), program care are implementate prevederile din Normativul Romanesc P100-92 pentru determinarea incarcarilor seismice static echivalente.
Acest calcul a fost aplicat atat pentru structura cu bare disipative scurte (BDSR, BDSM) cat si pentru structura cu bare disipative lungi (BDLR, BDLM). Elementele disipative precum si grinzile cadrelor necontravantuite au fost dimensionate in domeniul elastic cu eforturile maxime rezultate din calculul static liniar, folosind gruparile de incarcari fundamentala si speciala.
Pentru dimensionarea elementelor structurale care trebuie sa ramana in domeniul elastic in timpul actiunii seismice (stalpi, grinzi adiacente barelor disipative, contravantuiri), s-a aplicat ipoteza de incarcare cu seismul majorat (rel. 7) :
cu
(7)
Ancorarea stalpilor in fundatii s-a realizat prin inglobarea acestora in bulbii din beton armat ai infrastructurii, pe inaltimea unui nivel. Pentru stabilirea lungimii de ancorare (inglobare) a stalpului, s-a folosit si o ipoteza de incarcari suplimentara cu seismul majorat (rel. 8):
cu
(8)
care asigura comportarea elastica a prinderii stalpilor in fundatii la incarcarile date de seism.
Analiza static neliniara si dinamic neliniara s-a facut cu programul DRAIN 2D+ care este un program de calcul plan, care permite incursiuni in domeniul elasto-plastic. Programul contine un element finit (elementul 9), care permite formarea articulatiilor plastice din moment incovoietor si forta taietoare. Acest tip de element finit nu este continut de majoritatea programelor de calcul utilizate la calculul structurilor.
Programul DRAIN 2D+, fiind un program de calcul plan, pentru simularea comportarii spatiale a structurii, s-a utilizat sistemul trenului de cadre in care s-au impus deplasari egale ale cadrelor, la nivelul planseelor.
Pentru a verifica concordanta dintre comportarea spatiala a constructiei si metoda trenului de cadre, s-a reluat analiza modala si calculul fortelor conventionale din actiunea seismica, determinate anterior cu programul SPAN, folosind programul DRAIN 2D+.
S-a constatat ca perioadele proprii de vibratie calculate cu cele doua programe sunt apropriate ca valoare . {n urma parcurgerii acestor etape de calcul, s-a conformat structura in solutie omogena cu bare disipative scurte (BDSR, BDSM) si respectiv cu bare disipative lungi (BDLR, BDLM).
3.1. Comentarii privind rigiditatea laterala a structurii
Variantele studiate, asa cum rezulta din tab. 2, sunt:
(A) Structura duala, formata din cadre necontravantuite (CN) + cadre contravantuite excentric (CCE), cu bara disipativa scurta (BDSR, BDSM).
(B) Structura duala formata din cadre necontravantuite (CN) + cadre contravantuite excentric (CCE), cu bara disipativa lunga (BDLR, BDLM).
{n ambele variante (A si B) a fost analizata structura omogena, cu bare disipative cu sectiunea mai mica (BDSR, BDLR) si respectiv egala (BDSM, BDLM) cu a grinzilor din deschiderile necontravantuite.
Pentru analiza structurilor cu placa din beton armat, au fost studiate urmatoarele solutii constructive (tab. 2) :
- BD omogena + restul grinzilor structurii in solutie compozita, cu pastrarea dimensiunilor grinzilor metalice (BDSR 2, BDSM 7, BDLR 10, BDLM 15).
- BD omogena + restul grinzilor
structurii in solutie compozita cu micsorarea dimensiunilor grinzilor metalice
astfel incat
- grinzi compozite
echivalente (BDSR 3, BDLR 11).
- BD compozita + restul grinzilor structurii in solutie compozita cu pastrarea dimensiunilor grinzilor metalice (BDSR 4, BDSM 8, BDLR 12, BDLM 16).
- BD compozita + restul grinzilor
structurii in solutie compozita echivalenta cu micsorarea dimensiunilor grinzilor
metalice cu
(BDSR 5, BDLR 13).
{n cazul CCE cu BDS se constata o scadere a perioadei proprii de vibratie, in cazul solutiei compozite fata de solutia omogena, cu pana la 14,5 % , fig. 1.
{n cazul CCE cu BDL se constata o scadere a perioade proprii de vibratie in cazul solutiei compozite, fata de solutia omogena cu pana la 19,2 % , fig. 2.
S-a confirmat ceea ce era cunoscut din practica inginereasca si anume ca rigiditatea laterala a cadrelor contravantuite excentric cu bare disipative scurte este mai mare decat a cadrelor cu bare disipative lungi.
3.2. Comentarii privind calculul static neliniar
Pentru toate structurile analizate, cu
grinzi omogene sau compozite, factorul de amplificare a fortei orizontale
conventionale din actiunea seismica (
), are valoarea maxima 3,0 cu gradientul de crestere de
0,02. S-a ales ca limita superioara
= 3,0, pentru a putea verifica daca pe elementele
structurale care trebuie sa ramana in domeniul elastic, pe intreaga durata de
actiune a seismului, nu se formeaza articulatii plastice pana la
=2,5, iar pentru un eventual seism, mai puternic decat
cele cunoscute, sa nu se formeze mecanisme de etaj, forme critice sau colaps al
structurii, pentru o crestere cu
20 % a factorului
de incarcare.
Din analiza rezultatelor calculului static neliniar, se constata ca :
articulatiile plastice apar pana la
factorul
=2,5 , numai in elementele disipative, in cazul
structurilor omogene;
rotirea maxima a barelor disipative,
scurte sau lungi, pentru factorul de amplificare
=2,5, se manifesta la nivelele 2
5 si este in medie cu 50% mai mica decat rotirea plastica
admisibila.
Rigiditatea pentru aceeasi structura,
este puternic influentata de prezenta placii de beton armat. Cu cat rigiditatea
este mai mare, factorul de incarcare
are valori mai
mari. Pentru structurile cu bare disipative compozite se observa o repartitie a
articulatiilor plastice si in elementele in care nu se accepta incursiuni in
domeniul elasto-plastic (stalpi, grinzi
adiacente barelor disipative).
T1 = 1.17 s
gp = 0.11 rad
Fig. 3 - BDSR - solutie omogena
T1 = 1.35 s
Fig. 4 - BDLR - solutie omogena
T1 = 1.10 s
T1 = 1.26 s
Fig. 6 - BDLR - grinzi compozite echivalente + BD omogena
T1 = 1.10 s
Fig. 7 - BDSR - grinzi compozite echivalente + BD compozita
T1 = 1.21 s
Fig. 9 - CALCUL STATIC NELINIAR - rotiri de bara gp (radiani) pentru W = ultim

Fig. 10 - CALCUL STATIC NELINIAR - rotiri de bara gp (radiani) pentru W = ultim
4. COMENTARII PRIVIND CALCULUL DINAMIC NELINIAR
{n fig. 11 20 sunt prezentate selectiv unele valori caracteristice obtinute prin aplicarea calcului dinamic neliniar. Accelerogramele folosite sunt Vrancea 1977, Cheia 1986, artificiala (spectru Vrancea), El Centro 1940, Northridge 1994, Mexico City 1995.
{n cazul utilizarii accelelogramei Vrancea 1977 se constata urmatoarele :
- deplasarea (la partea superioara a structurii), pentru toate variantele de structuri analizate, nu depaseste valoarea maxima admisibila de 33 cm (pentru BDS, Dmax= 25 cm, pentru BDL, Dmax = 31 cm).
- rotirea barelor disipative, in cazul structurilor cu BDS, depaseste cu pana la 77% rotirea plastica admisibila, iar in cazul structurilor cu BDL cu pana la 60%.
- forta taietoare la baza structurii
creste odata cu scaderea rotirii barei disipative, fiind mai mare cu
4% la structurile cu BDS decat la structurile cu BDL .
- ordonata maxima a energiei disipate
scade odata cu scaderea rotirii barei disipative,
fiind cu
21% mai mare la
structurile cu BDL decat la cele cu BDS.
{n cazul utilizarii de accelerograme diferite pentru structura omogena cu BDLR se constata urmatoarele :
- accelerograma Vrancea 1977 conduce la cele mai mari deplasari laterale (Dmax=31 cm < Dmax=33 cm), rotiri ale barelor disipative (Wp=0,032 rad > Wadm=0,02 rad) si forte taietoare la baza structurii. {n ceea ce priveste ordonata maxima a energiei disipate, valoarea maxima a acesteia este produsa de accelerograma artificiala (spectru Vrancea 1977).
- accelerogramele El Centro 1940 si Mexico City 1995 produc deplasari laterale si rotiri ale barelor disipative mici D= 13 cm si gp= 0,009 rad. Fortele taietoare la baza structurii si ordonata maxima a energiei disipate sunt de 70% si respectiv 35% din valorile celor produse de accelerograma Vrancea 1977.
- accelerograma Northridge 1994 conduce la valori ceva mai mari pentru deplasarea laterala si rotirea barelor disipative D= 17 cm, respectiv gp = 0,014 rad. Forta taietoare la baza structurii este de 90% din cea produsa de accelerograma Vrancea 1977, insa ordonata maxima a energiei disipate este mica, numai de 40% din cea corespunzatoare accelerogramei Vrancea 1977.
Se subliniaza ca, cu toate ca accelerograma Vrancea 1977 are a = 0,2 g aceasta induce in structura tensiuni si deformatii mult mai mari decat in cazul accelerogramei Northridge care are acceleratia de 4,4 ori mai mare, a = 0,88 g. {n urma aplicarii accelerogramelor, structura ramane deformata, cu tensiuni remanente, in zonele cu incursiuni in domeniul elasto-plastic. Prin aplicarea unei noi accelerograme, dupa trecerea unui timp estimat la 30 sec. de vibratii libere, pe structura ramasa deformata datorita primei accelorograme, structura oscileaza fortat in jurul pozitiei deformate.
Folosind bare disipative cu sectiune
redusa, s-a ajuns la un raport Mp/Tp, care incadreaza
bara disipativa in domeniu intermediar de comportare, cu formare de articulatii
plastice din combinatia de eforturi M si T. {n aceasta situatie, au fost
depistate depasiri majore ale rotirilor la nivelele 5
8. Ar fi insa
eronat sa comparam rotirile barelor rezultate in urma unui calcul dinamic
neliniar cu cele admise in norme, valori care rezulta din corelarea rotirilor
cu deplasarile relative de nivel. De remarcat ca in norme este stabilita, de
fapt, o deplasare elastica amplificata cu un coeficient ce variaza practic in
jurul aceleiasi valori, indiferent de norma.
{n cazul in care, deplasarile de nivel se incadreaza in limitele acceptate de norme, rotirile pot fi analizate functie de capacitatea maxima de rotire a barei in domeniul elasto-plastic, capacitate stabilita experimental. Prin capacitate de rotire elasto-plastica se intelege rotirea maxima care poate fi dezvoltata de o bara, fara sa apara pierderi de stabilitati locale. Pentru o proiectare curenta, in lipsa posibilitatilor de experimentare, se poate accepta, pentru sectiuni de clasa 1, o rotire admisibila de 0,15 rad., pentru bara disipativa scurta si de 0,06 radiani, pentru bara disipativa lunga. Totusi, este recomandabil ca rotirile structurilor reale sa fie drastic limitate pentru a induce in structura tensiuni remanente cat mai mici, in urma incursiunilor in domeniul elasto-plastic.
La varianta structurala cu bare disipative compozite (realizata cu sectiunea barei disipative omogene la care se adauga efectul placii din beton armat), din cauza modificarii caracteristicilor geometrice ale sectiunii, plastificarea sectiunii se produce din forta taietoare, caracteristica domeniului de comportare a barelor disipative scurte.

{n
calculul static neliniar, pentru structuri cu grinzi compozite cu bare
disipative compozite sau omogene, au aparut articulatii plastice in elementele
dimensionate sa lucreze in domeniul elastic, pe toata perioada de actiune a
seismului, la valori ale coeficientului
. In calculul dinamic neliniar, acest fenomen nu s-a
manifestat, ceea ce conduce la ideea ca in multe cazuri, calculul static
neliniar este mai sever decat cel dinamic neliniar.
Fig. 11 - CALCUL DINAMIC NELINIAR - rotiri de bara gp (radiani)

Fig. 12 - CALCUL DINAMIC NELINIAR - rotiri de bara gp (radiani)
Fig. 13 - CALCUL DINAMIC NELINIAR - rotiri de bara gp (radiani)
![]()


Fig. 14 - Accelerograme Vrancea 1977, Cheia 1986 si artificiala



a b


c d
Fig. 15 - BDLR - Solutie omogena. Calcul dinamic neliniar,
accelerograma Vrancea 1977 (a = 0,2 g), timp 7,18 s.
a. rotirea barei disipative 3: gp = 0,032 rad.
b. deplasarea nodului de la ultimul nivel: D = 0,31 m
c. energie disipata: Emax = 558,3 tf.m
stalpi; 2. grinzi; 3. bare disipative; 4. diagonale
d. forta taietoare de baza: S = 1156,0 t (pt. cadre necontravantuite +
cadre contravantuite)



a b


c d
Fig. 16 - BDLR - Solutie omogena. Calcul dinamic neliniar,
accelerograma Northridge 1994 (a = 0,88 g), timp 15,2 s.
a. rotirea barei disipative 3: gp = 0,014 rad.
b. deplasarea nodului de la ultimul nivel: D = 0,17 m
c. energie disipata: Emax = 215,0 tf.m
1. stalpi; 2. grinzi; 3. bare disipative; 4. diagonale
d. forta taietoare de baza: S = 1019,3 t (pt. cadre necontravantuite +
cadre contravantuite)



a b


c d
Fig. 17 - BDLR - Solutie omogena. Calcul dinamic neliniar,
accelerograma El Centro 1940 (a = 0,35 g), timp 6,06 s.
a. rotirea barei disipative 3: gp = 0,009 rad.
b. deplasarea nodului de la ultimul nivel: D = 0,13 m
c. energie disipata: Emax = 204,0 tf.m
1. stalpi; 2. grinzi; 3. bare disipative; 4. diagonale
d. forta taietoare de baza: S = 886,8 t (pt. cadre necontravantuite +
cadre contravantuite)



a b


c d
Fig. 18 - BDLR - Solutie omogena. Calcul dinamic neliniar,
accelerograma Mexico City 1995 (a = 0,10 g), timp 36,8 s.
a. rotirea barei disipative 3: gp = 0,009 rad.
b. deplasarea nodului de la ultimul nivel: D = 0,13 m
c. energie disipata: Emax = 151,2 tf.m
1. stalpi; 2. grinzi; 3. bare disipative; 4. diagonale
d. forta taietoare de baza: S = 811,3 t (pt. cadre necontravantuite +
cadre contravantuite)



a b


c d
Fig. 19 - BDLR - Solutie omogena. Calcul dinamic neliniar,
accelerograma Vrancea 1977 + 30 s repaus +
accelerograma Cheia 1986, timp 7,18 s.
a. rotirea barei disipative 3: gp = 0,032 rad.
b. deplasarea nodului de la ultimul nivel: D = 0,31 m
c. energie disipata: Emax = 655,3 tf.m
1. stalpi; 2. grinzi; 3. bare disipative; 4. diagonale
d. forta taietoare de baza: S = 1150,2 t (pt. cadre necontravantuite +
cadre contravantuite)



a b


c d
Fig. 20 - BDLR - Solutie omogena. Calcul dinamic neliniar,
accelerograma artificiala (spectru Vrancea 1977), timp 6,3 s.
a. rotirea barei disipative 3: gp = 0,023 rad.
b. deplasarea nodului de la ultimul nivel: D = 0,25 m
c. energie disipata: Emax = 1028,0 tf.m
1. stalpi; 2. grinzi; 3. bare disipative; 4. diagonale
d. forta taietoare de baza: S = 1100,4 t (pt. cadre necontravantuite +
cadre contravantuite)
CONCLUZII
Calculul structurilor multietajate se poate realiza,
intr-o prima faza, considerand grinzile omogene - parcurgand toate etapele de
calcul - iar apoi grinzile omogene vor fi inlocuite cu grinzi compozite
echivalente
Aceasta metodologie de calcul conduce la o simplificare majora a efortului de proiectare si totodata la o conformare rationala a elementelor structurale.
Barele disipative lungi, scurte sau intermediare, nu trebuie incarcate direct, pentru a permite dezvoltarea articulatiilor plastice din actiunea incarcarilor seismice si pentru a evita suprapunerea necontrolabila de tensiuni, produse de incarcarile gravitationale.
Suprapunerea de eforturi din diverse incarcari, poate conduce la impiedicarea dezvoltarii rotirilor in domeniul elasto-plastic.{ncarcarile se pot aplica pe grinzi secundare, care delimiteaza intentionat bara disipativa si care asigura totodata stabilitatea generala.
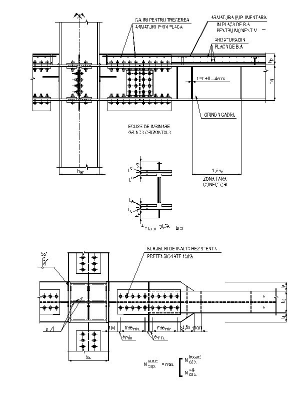
Prin sistemul constructiv ales, barele disipative vor lucra in structura numai ca elemente omogene. Placa din beton armat va fi detasata (vezi figura 21) de talpa superioara a barei disipative sau a zonei disipative. Detasarea se poate realiza prin crearea unui spatiu intre talpa superioara si placa din beton armat.
Pe aceasta zona nu vor fi prevazuti conectori. Placa de beton armat va rezema pe grinzile secundare, care delimiteaza bara sau zona disipativa. {n lungul grinzilor secundare se vor realiza rosturi patrunse, prevazute cu conectori orizontali pentru a nu fi afectat efectul de saiba. Conectorii vor permite in schimb, rotirea in plan vertical.
Pentru ca raportul dintre momentele pozitive si negative ale grinzilor compozite sa aiba valori cat mai mici, se impune armarea suplimentara a placii din beton armat cu bare paralele cu elementul disipativ.
Clasa betonului influenteaza intr-o masura nesemnificativa capacitatea portanta la moment negativ. Practic, intre Bc 15 si Bc 30, cresterea capacitatii portante este de numai 2 %.

Fig. 21 - Solutii pentru a permite deformarea libera a barelor disipative
in cazul existentei placilor din beton armat
Pentru dimensionarea si verificarea elementelor structurale care trebuie sa lucreze in domeniul elastic, pe toata durata de actiune a seismului (stalpi, diagonalele cadrelor contravantuite excentric, grinzile adiacente barelor disipative), acestea se vor calcula cu relatia (4) :
(4)
unde :
se ia din tabelul
1 functie de tipul structurii
Pentru dimensionarea suruburilor de ancoraj sau a lungimii de stalp, inglobat in infrastructura (bulbi, radier, diafragme etc.) din beton armat se foloseste relatia de calcul :
(5)
(in cazul folosirii sistemului de incastrare a stalpilor prin inglobarea acestora in elemente din beton armat - bulbi, radier, diafragme etc.).
Prinderile grinda-stalp se vor realiza cu sudura in adancime cu patrundere completa sau cu suruburi de inalta rezistenta.
Pentru reducerea starii complexe de eforturi din imbinarile cu flanse, se propune utilizarea unor dispozitive, scaune, amplasate atat la talpa inferioara cat si la cea superioara, care sa preia forta taietoare, indiferent de directia pe care aceasta actioneaza in plan vertical (fig. 23).
Surburile din imbinarile cu flanse fig. 22, 23, 24, 28 si 29 vor fi pretensionate intre 50 si 70 % din valoarea momentului de strangere al surubului din imbinarea care lucreaza prin frecare. Aceasta pretensionare are rol dublu :
- de micsorare a efectului dinamic din actiunea seismica;
- de realizare a unei imbinari rigide grinda - stalp.
Barele disipative pot avea caracteristici
geometrice ale sectiunii mai mici decat ale grinzii din deschiderile adiacente,
prin practicarea unor variatii ale latimii talpilor, pana la maxim 30
45 % din latimea
acestora sau utilizarea unor profile mai mici. Prin acest sistem se
dirijeaza formarea articulatiilor plastice in zonele disipative si nu in imbinari.
Dirijarea formarii articulatiilor plastice in zonele disipative se poate realiza si prin marirea caracteristicilor geometrice ale capetelor grinzii, prin adaugarea unor vute si/sau latirea talpilor grinzii .
Pentru structurile regulate, in plan si elevatie, cu doua axe de simetrie (specifice structurilor multietajate) se poate aplica sistemul de calcul pe doua structuri analoage:
- o structura spatiala, pentru analiza modala si calculul static liniar;
- un tren de cadre plan, pentru calculul static si dinamic neliniar (simularea efectului de saiba al planseului se face prin impunerea de deplasari laterale egale la fiecare nivel). Aceasta metodologie permite dimensionarea elementelor structurale din calculul static liniar spatial si totodata urmareste comportarea structurii in regim static si dinamic neliniar. Pentru ca cele doua structuri analoage (spatiala si tren de cadre plane) sa fie echivalente trebuie ca perioada proprie de vibratie sa nu difere cu mai mult de 10 %.
Pentru a dimensiona cu un grad mai mare de siguranta, este necesar sa se utilizeze in calculul dinamic neliniar mai multe accelerograme reale, cu caracteristici dinamice cat mai diferite. Pentru a ne apropia cat mai mult de comportarea reala a unei structuri, la un viitor seism, pe un amplasament intr-o zona pentru care se cunoaste accelerograma, este indicat sa se utilizeze in calculul dinamic neliniar, pe langa acelerograme reale si accelerograme sintetice.
Prin folosirea accelerogramelor sintetice, se poate cuantifica si efectul oboselii la un numar redus de cicluri.
{n urma unui seism, structurile care au avut incursiuni in domeniul elasto-plastic raman cu tensiuni si deformatii remanente. {n cazul aparitiei unui nou seism (replici sau seisme pe structuri neconsolidate) seismul gaseste pe structura respectiva o alta geometrie si zone ale elementelor disipative sau elemente disipative in sine cu tensiuni remanente care constituie puternici concentratori de eforturi. {n fig. 19 se poate vedea starea de deformatii remanente (rotiri si deplasari) si apoi deformatiile rezultate din aplicarea unei noi accelerograme. Aceste deformatii se dezvolta in jurul pozitiei deformate.

Fig. 22

Fig. 23

Fig. 24

Fig. 25

Fig. 26

Fig. 27

Fig. 28

Fig. 29
Folosirea programului DRAIN 2D+ nu a permis cuantificarea starilor de tensiuni in articulatiile plastice rezultate din aplicarea celor doua accelerograme.
Cel de al doilea seism trebuie considerat fara coeficient de amortizare, deoarece elementele nestructurale au fost partial sau total distruse, iar structura prezinta importanti concentratori de eforturi care nu pot fi cuantificati.
Calculul unei structuri multietajate in solutie omogena, fara luarea in considerare a influentei placii din beton armat (prin sectiuni echivalente) asupra grinzilor metalice poate conduce la colaps prematur sau la aparitia formelor critice, in timpul actiunilor seismice.
Pentru a asigura o buna comportare ductila a structurii, in ansamblul sau, se recomanda conformarea si dimensionarea cadrelor, astfel incat forta taietoare de baza sa fie preluata in proportie de cel putin 25 % de cadrele necontravantuite.
Pentru asigurarea confortului intr-o structura cu planseu compozit, perioada proprie de vibratie a acestuia trebuie sa fie sub 0,2 secunde.
Astaneh ASL. A.(1995). Seismic Design of composite structures in the United States Behaviour of steel Structures in Seismic Areas STESSA'94 EFN.SPON p. 448
Aribert J.M. (1997). Modelisation par elements finis adopte aux poutres et assemblages de batiments mixtes acier-beton. Proc. of the 8th Intern. Conf. Steel Struct. Timisoara (Romania)
AISC-97 (1997). Seismic Provision for Structural Steel Buildings.
Bursi O.S., Gramola G., Zandonini R., (1997). Quasi-static cyclic and pseudo-dynamic composite substructures with softening behaviour in SDSS'97 Nagoya (Japan).
Normativ pentru proiectarea antiseismica a constructiilor de locuinte, social-culturale, agrozootehnice si industriale (P100-1992). Ministerul Lucrarilor Publice si Amenajarii Teritoriului. Bucharest. (Romania).
Dalban C., Ioan P., Dima S., Betea St. & Spanu St. (1995). Proposals for Improving the Romanian Seismic Code. Provisions concerning multy-storey steel frames. IABSE Int. Conf. of Steel Struct. Final Report. Budapest.
Eurocode 4 - ENV 1994 (1992). Design of composite Steel and Concrete Structures. Part 1.1 General rules for Buildings. European Committee for Standardisation (1992)
Eurocode 8 - ENV 1998 (1994). Design provisions for Earthquake resistance of structures. European committee for Standardisation (1994).
Nethercot D.A., (1997). Behaviour and design of composite connections. IABSE , Intern Conf. on Composite Construction. Innsbruck (Austria).
|
Politica de confidentialitate | Termeni si conditii de utilizare |
Vizualizari: 4292
Importanta: ![]()
Termeni si conditii de utilizare | Contact
© SCRIGROUP 2026 . All rights reserved