Scrigroup - Documente si articole

     

HomeDocumenteUploadResurseAlte limbi doc
AeronauticaComunicatiiElectronica electricitateMerceologieTehnica mecanica


CONDENSATOARE DE PUTERE

Electronica electricitate



+ Font mai mare | - Font mai mic



CONDENSATOARE DE PUTERE

UN > 1000 V ~



1. informatii generale

A. Vedere generala

I. Unitati de condensatoare monofazate de la 1kV pana la max. 24kV la 50/60 Hz, 20kVAr pana la maxim 1000kVAr.

Variante constructive pentru interior si pentru aer liber, cu carcasa impamintabila (2 terminale) sau cu carcasa conducatoare de tensiune (1 terminal).

Gradul de protectie IP 00 si IP 55.

II. Unitati de condensatoare trifazate de la 1kV pana la max. 12kV la 50/60 Hz, 20kVAr pana la maxim 800kVAr.

Varianta constructiva pentru interior cu carcasa impamintabila (3 terminale).

Gradul de protectie IP 00 si IP 55.

In gradul de protectie IP 00 sunt potrivite si pentru aer liber.

B. Prescriptii

Urmatoarele prescriptii pot fi utilizate pentru condensatori de putere de inalta tensiune:

- VDE 0560/4    'Prevederi pentru conductorii de putere'

- IEC 60871-1    'Condensatoare de putere'

- IEC 143    'Condensatoare de putere'

- AS 2897    'Condensatoare sunt pentru conectare in sistemele de frecventa energetice'

- NEMA - CP 1 'Condensatoare sunt'

- BS 1650/71 'Specificatie pentru condensatori ce se conecteaza in sistemele de frecventa energetice'

La cerere condensatori conform altor prescriptii.

C. Domeniul de utilizare

Compensarea curentului reactiv.

Numai puterea activa, produsa de curentul activ, se face utila in consum. Puterea reactiva, produsa de curentul reactiv, nu participa la conversia in energie utila. De asemenea, ea nu va fi contorizata de contorul de putere activa al consumatorului.

Puterea reactiva actioneaza insa defavorabil asupra instalatiilor electrice, deoarece ea reprezinta o incarcare suplimentara a generatoarelor,transformatoarelor si cablurilor. Ea provoaca caderi suplimentare de tensiune si pierderi de curent. Puterea reactiva, necesara la motoare, transformatoare si cabluri pentru crearea cuplului magnetic, penduleaza continuu intre producatorii de curent si consumatori. Puterea reactiva poate fi preluata economic de catre condensatori. Acestia trebuie amplasati in apropierea marilor consumatori reactivi (motoare, transformatoare), pentru a descarca partial retelele de transport, inclusiv transformatorii si producatorii de curent.In multe cazuri, prin amplificarea corespunzatoare a consumatorilor, pot fi racordati noi consumatori la instalatiile de alimentare existente, fara sa fie necesara amplificarea sau extinderea acestora.

Compensarea individuala:

Condensatorul introdus pe faza se leaga nemijlocit cu bornele consumatorului si este cuplat impreuna cu acesta.

Avantajele sunt: reducerea incarcarii instalatiei de distributie si a intrerupatorului, nu este necesar un intrerupator pentru condensator si nici rezistente de descarcare, instalare simpla si ieftina.

Aceasta masura se foloseste atunci cind consumatorii mari, (de ex. motoare) functioneaza in regim de durata.

Compensarea individuala a motoarelor trifazate:

Motorul si condensatorul sunt conectate in paralel. Ele sunt cuplate si decuplate cu acelasi aparat de comutare si sunt supravegheate de un dispozitiv de protectie comun. Nu este necesar un mijloc de descarcare. Descarcarea condensatorului se face prin infasurarile motorului.

Aparatele de comutare se aleg in functie de condensatorul de cuplare, iar conductorii de legatura, in functie de curentul compensat al motorului la sarcina nominala. In acest caz condensatorul se amplaseaza in apropierea nemijlocita a motorului.

Compensarea individuala a transformatorilor:

Conectarea directa a condensatorului la un transformator, o data cu care este cuplat si decuplat, este permisa si admisa atit in primar cit si in secundar.

Daca condensatorul este montat in partea de joasa tensiune a transformatorului atunci, la retelele cu un continut puternic de supraunde, trebuie verificat ulterior daca intre capacitatea condensatorului si inductivitatea remanenta a transformatorului, acumulata anterior in acesta, nu poate sa apara o rezonanta de tensiune cu una din suprasolicitatiile prezente in retea (in special suprasolicitatia 5 si 7).

Trebuie sa se atraga atentia si asupra actiunii condensatorului de crestere a tensiunii, care poate duce la cresteri nedorite de tensiune iin cazul functionarii la sarcina redusa, daca puterea condensatorului a fost aleasa atit de mare, incit depaseste necesarul de curent reactiv al transformatorului. La transformatorul incarcat capacitiv apare o crestere a tensiunii, in loc de o cadera a tensiune.

Compensarea individuala a aparatelor de sudura:

Puterea cundensatorului, pentru transformatoare de sudura si masini de sudat ca rezistenta, se poate situa intre 30 si 50% din puterea nominala a transformatorului.La redresoarele de sudura ajunge o putere a condensatorului de circa 10% din puterea nominala.

Compensarea pe grupe:

Condensatorul introdus pe faza este pus in statia de subdistributie, care, de ex., alimenteaza un mare numar de motoare mici,ce fie merg in regim continuu, fie cu intreruperi.

Motoarele si condensatoarele vor fi comutate separat si vor fi supravegheate de dispozitive de protectie separate. Condensatorii se cupleaza si se decupleaza individual sau pe grupe, dupa necesitati.

Compensarea centrala:

In instalatiile mari, cu multi consumatori mici si mijlocii, (motoare etc.), care de obicei nu sunt simultan in functiune, se racordeaza    condensatorii introdusi pe faza central, in bara colectoare principala. Condensatorii vor fi comutati fie impreuna manual, fie automat printr-un regulator, in functie de puterea reactiva.

Avantaje:

In cazul reglarii automate, adaptare buna a puterii condensatorilor la puterea reactiva necesara intr-un anumit moment si, astfel, o mentinere mai buna a factorului de putere (cos ) prescris, in mod economic.

Dezavantaje:

Cablurile de distributie dintre buna colectare si consumator nu sunt descarcate de curentul reactiv.

E. Caracteristici:

1. Forma constructiva:

La echipamentele condensatorelor monofazat cu carcasa izolata ambii poli sunt adusi in afara prin izolatori de portelan. Carcasa nu este sub tensiune si poate fi pusa la pamint .

La echipamentul condensator monofazat cu o singura borna al doilea pol este pe carcasa.

Izolatia intre faza si faza si intre faza si pamint se realizeaza, de regula, prin suporti izolanti montati la partea de jos.

Echipamentele condensator trifazat au, pentru racordarea la fazele L1, L2, L3, trei borne si o carcasa izolata si impamintabila . Ele sunt conectate in stea sau in triunghi.

Conexiunea utilizata este vizibila pe eticheta de caracteristici. Carcasa condensatorului este sudata iar bornele sunt lipite.

Pentru bateriile mici sta la dispozitie varianta constructiva de condensatori monofazati cu carcasa izolata.

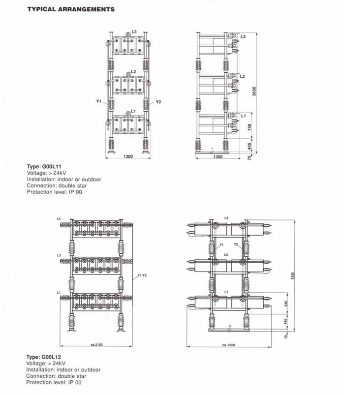
Executia dubla separata a polului de la partea punctului central al stelei la capacitate impartita, permite o forma constructiva avantajoasa ca pret a bateriilor mici, in constructie dubla stea (vezi grupa de produse 0.8), pentru montaj in interior sau in aer liber.

Cind este ceruta protectie impotriva atingerii, condensatorii pot fi livrati si in

IP55 = Protectie impotriva depunerilor de praf si suvoaielor de apa.

Alte grade de protectie numai cu executie speciala

Dimensiunile si greutatile condensatorilor:

   

3. Temperatura de racire admisibila

Condensatorii de putere ESTAfol se autoracesc si corespund clasei de temperatura 45 (VDE 0560, cap.4), adica temperatura aerului de racire admisibila:

45C in medie pe 1 ora.

40C in medie pe 24 ore

30C in medie pe 1 an.

Pentru a asigura o convectie suficienta a aerului inconjorator, trebuie sa se pastreze o distanta minima de 55mm intre pertile laterale ale carcaselor.

4. Dielectric

Se utilizeaza un dielectric mixt, compus din polipropilena ( pe scurt denumita PP), ca folie intinsa biaxial cu coponenta redusa ataktisch si hirtie celulozosodica saraca in pierderi.

Ambele materiale se disting printr-un numar extrem de redus de puncte de defect. Pentru condensatorii completi cu film se foloseste dielectric numai polipropilena.

Pierderi:

In stare noua cca. 0.5W/kV(0.15W/kvar), dupa 500 ore de functionare cca 0,3 W/kvar    (0,1 W/kvar). In paranteza valorile pentru numai cu film.

Dependenta pierderilor si a capacitatii de temperatura de lucru, pentru ambii dielectrici, se poate lua din curbele 1 si 2.

Pierderile sunt dependente de forma constructiva a unui condensator. Datele prin prospect prezintanumai valori orientative. Pentru condensatorii cu sigurante interne rezulta valori neinsemnat mai mari.

   

5. Mijlocul de impregnare:

Condensatorii se ipregneaza in NON - PCB.

NON - PCB este Biofemil nepoliclorurat.Toate mijloacele de impregnare NON - PCB au, pe linga proprietatile dielectrice evidentiate, urmatoarele caracteristici principale:

- degradabile biologic

- netoxice

- evacuare fara probleme

- punctul de aprindere la cca. 150C

6. Rezistenta la tensiune:

Dielectricul este corespunzator, fara reducerea duratei de viata, pentru urmatoarele supratensuni, cu toate ca aceste supratensiuni nu trebuie sa apara de mai mult de 200 la 300 ori pe parcursul duratei de viata a condensatorului:

Durata

Factorul de supratensiune

(raport la tensiunea nominala)

1/2 perioada

1 perioada

15 perioade

50 perioade

15 secunde

1 minut

5 minute

30 minute

Posibilitatea de supraincarcare pe durate mai mari de timp:

a) Cea mai inalta tensiune admisibila .

Posibilitatea de supraincarcare corespunde normei respective.

b) Cel mai inalt curent admisibil.

Condensatorii sunt corespunzatori pentru o functionare de durata la un curent de 1.3 ori mai mare decit curentul nominal al condensatorului.

La cerere condensatori pentru o supraincarcare mai mare in curent.

7. Descarcarea

Dupa decuplare, condensatorii trebuie descarcati conform VDE 0101. Nu este permisa o scurtcircuitare directa a clemelor condensatorului, datorita curentului ridicat. Ca dispozitive de descarcare pot fi folosite:

1. Infasurarile de motoare, transformatoare, convertoare de tensiune

2. Rezistente cu valoare ohmica mare.

Aceste dispozitive de descarcare trebuie sa fie legate nemijlocit cu clemele condensatorului.Daca sunt utilizati condensatori cu rezistente de descarcare incorporate, atunci pe imprejmuirea instalatiei trebuie puse placute avertizoare conforme VDE 0105, care indica asupra timpului de descarcare lung.

Rezistentele incorporate descarca echipamentul condensator in 5 minute la 50V.

O descarcare in domeniul milisecundelor se realizeaza cu convertorul de tensiune izolat cu ambii poli si conectare in volti.Aceasta metoda trebuie sa fie utilizata de regula, la bateriile de condensatori cu conectari dese.

Informatii de comandare

Pentru comandare, respectiv pentru elaborarea unei oferte corecte, sunt necesare urmatoarele date:

Tensiunea nominala la condensator:

kV

Frecventa nominala:

Hz

Puterea nominala:

kvar

Toleranta:

Clasa de temperatura:

- C/+C

Rezistenta de descarcare:

da/nu

Numarul bornelor:

Izolatia:

/ kV / kVs

Protejare cu sigurante: intern/extern:

intern / extern

Dielectric: mixt/complet film:

mixt / complet film

Amplasare: in interior/in aer liber:

in interior / in aer liber

Prescriptii:

VDE 0560/4

sau IEC 70

sau .



Politica de confidentialitate | Termeni si conditii de utilizare



DISTRIBUIE DOCUMENTUL

Comentarii


Vizualizari: 1847
Importanta: rank

Comenteaza documentul:

Te rugam sa te autentifici sau sa iti faci cont pentru a putea comenta

Creaza cont nou

Termeni si conditii de utilizare | Contact
© SCRIGROUP 2026 . All rights reserved