| CATEGORII DOCUMENTE |
| Aeronautica | Comunicatii | Electronica electricitate | Merceologie | Tehnica mecanica |
![]() |

Cazan VIADRUS G 100 ECO
Manual Tehnic
![]()

Sumar:
Domeniul de utilizare si avantajele cazanului
Schema cazanului
Parametrii tehnici ai cazanului VIADRUS G 100 ECO
Descrierea cazanului
Constructia cazanului
Dispozitive de sigurata si reglare
Schema conexiunilor electrice
Instalare
Reguli si normative
Posibilitati de amplasare
Tipurile recomandate de conexiuni cu RVA.
Comanda, livrare, montaj
Comanda
Livrarea accesoriilor
Montaj
Punerea in functiune
Verificari necesare inainte de punerea in functiune
Punerea in functiune
Reglarea cazanului
Echipat cu dispozitiv de control etanseitate
Recomandari pentru utilizatori
Intretinere
Defectiuni si remedii
Garantii
![]()
Domeniul de
utilizare si avantajele cazanului
Cazanul sectional din fonta pe gaz VIADRUS G 100 L cu arzator atmosferic este proiectat pentru arderea gazului la presiune scazuta. Cazanul se poate folosi pentru incalzirea cladirilor mijlocii si mari dar si pentru prodicerea de apa calda menajera ale acestora.
Cazanul este fabricat numai pentru sisteme de producerea agentului termic cu circulatie fortata a apei calde la presiunea de lucru de 0.4 Mpa (4 bar). Presiunea la proba hidraulica este de 0.8 Mpa (8 bar).
Avantajele cazanului:
Durata lunga de viata
Intretinere si exploatare usoara
Dispozitive de reglare si siguranta fiabile
Randament peste 90%
Cazanul este prevazut cu termostat pentru gaze arse.
Prezinta posibilitatea de cuplare in cascada
Consum scazut de energie electrica
Posibilitate de amplasare a racordului de gaze pe dreapta sau stanga cazanului.
Trecerea automata pe cele doua trepte ale arzatorului (putere nominala/scazuta) functie de necesarul de
caldura
Posibilitate de dotare cu regulatoare
Volum scazut de substante nocive in gazele arse
Mantaua superioara a cazanului
Regulatorul de sarcina (unitate
cu regulator)
Panou electric de comanda
Sonda si termostatul de siguranta a cazanului
Sonda cu capilar si supapa
pentru manometru
Manta frontala
Ecran de protectie
Electroventil de protectie - gaz
Electroventil de reglaj - gaz
Placa izolanta a arzatorului
Electrod de aprindere si supraveghere flacara
Distribuitor de gaz
Alimentare cu aer de ardere
Duza arzatorului
|
Iesire gaze arse
Colector gaze arse
Termostat pe traseul de gaze
arse (temperatura maxima)
Iesire apa calda (tur cazan)
Izolatia cazanului
Sectiune stanga a cazanului
Corpul cazanului
Alimentare cu gaz
Sectiune mediana a cazanului
Manta laterala
Bare ceramice
Tirant de strangere
Inrare apa (retur cazan)
Robinet de golire
Arzator de gaz
Baza cazanului (admisia
Fig.1 Schema
cazanului
aerului
necesar arderii)
Suport cazan
|
Tabelul 1: Caracteristicile tehnice de legatura cu restul echipamentelor din centrala termica
|
Numarul de elementi |
buc | |
|
Categoria cazanului |
I2H |
|
|
Puterea de incalzire maxima/nominala |
kW | |
|
Greutate (masa) |
kg | |
|
Volum apa |
L | |
|
Diametrul focarului |
mm | |
|
Dimensiuni DE GABARIT: Latime Adancime x inaltime |
mm mm |
1075X1420 |
|
Presiune de lucru pe partea de apa |
Bar | |
|
Presiune minima de lucru pe partea de apa |
Bar | |
|
Temperatura max. a apei din cazan |
sC |
s |
|
Presiune de proba hidraulica |
Bar | |
|
Nivel de zgomot |
dB | |
|
Tirajul cosului de fum |
mbar | |
|
Racorduri : Tur apa retur apa gaz |
G" G" G" | |
|
Alimentare electrica |
1 X 220 V, 50 Hz |
|
|
Putere Curent electric max. |
W | |
|
Grad de protectie electrica |
IP 40 |
![]()

Tabelul 2: Parametrii cazanului VIADRUS G 100 ECO pentru gaze naturale cu puterea calorica inferioara=34 MJm-3, la 15sC si presiunea de 1013,25 mbar, la un ecart de temperatura (tur/retur 80/60sC) de 20sC.
|
Numarul de elementi (fonta) |
Buc. | |
|
Putere termica nominala max. Putere termica nominala min. |
kW kW | |
|
Putere max. la focar Putere min. la focar |
KW kW | |
|
Consum de gaz la putere max. Consum de gaz la putere min. |
Nm3/h Nm3/h | |
|
Randament la putere max. Randament la putere min. | ||
|
Emisii de: Nox max admis Nox max detectat (masurat) |
Mg/Kwh Mg/Kwh |
max 110 max 95 |
|
Temperatura gazelor arse pe cos la putere max. Temperatura gazelor arse pe cos la putere min. |
C C |
min 110 min 95 |
|
Volum real de gaze arse uscate la putere max. Volul real de gaze arse uscate la putere min. |
m3/N m3 m3/N m3 | |
|
Presiunea min. de alimentare cu gaze |
mbar | |
|
Suprapresiune pe duzele arzatorului la putere max. Suprapresiune pe duzele arzatorului la putere min. |
mbar mbar | |
|
Diametrul duzei |
mm |
|
|
Numarul de elementi (fonta) |
Buc. | |
|
Putere termica nominala max. Putere termica nominala min. |
kW kW | |
|
Putere max. la focar Putere min. la focar |
KW kW | |
|
Consum de gaz la putere max. Consum de gaz la putere min. |
Nm3/h Nm3/h | |
|
Randament la putere max. Randament la putere min. | ||
|
Emisii de: COx max. admis NOx max. detectat (masurat) |
mg/Kwh mg/Kwh |
max 65 max 10 |
|
Temperatura gazelor arse la cos la putere max. Temperatura gazelor arse la cos la putere min. |
C C |
min. 110 min. 95 |
|
Volum real de gaze arse uscata la putere max. Volul real de gaze arse uscata la putere min. |
m3/N m3 m3/N m3 | |
|
Suprapresiune gaze arse la fine cazan |
mbar | |
|
Suprapresiune la duzele arzatorului la putere max.
|
mbar mbar | |
|
Diametrul duzei |
mm |

Pierderile de presiune prin cazan (mbar)
Descrierea
cazanului
![]()
Corpul cazanului este din fonta cenusie cu grafit modular conform normelor in vigoare: ISO 185
Partile solicitate la presiune sunt produse conform normelor in vigoare. (EN 303).
Principala parte a cazanului este corpul acestuia. Corpul cazanului este format din elementi imbinati prin niple si fixati prin tiranti. Elementii cazanului realizeaza camera de ardere. Orificiul pentru senzorii termostatului si racordul posterior al manometrului sunt pozitionati pe partea superioara a elementului lateral stanga. Turul si returul apei calde sunt aduse in partea posterioara a cazanului. Corpul cazanului este izolat cu vata minerala.
Racordul de gaze arse este fixat in partea superioara a corpului cazanului. Elementul orizontal de rupere a tirajului este fabricat din otel anticoroziv.
Corpul cazanului este pozitionat pe un suport din otel, pe care se afla tavita pentru colectare condens (tavita pentru condens este fabricata din otel anticoroziv).
Arzatorul atmosferic este constituit din tevi din otel cu orificii pentru fixarea duzelor, tevilor care sunt fixate pe placa arzatorului. Barele ceramice au rolul de a scadea volumul de NOx din produsele de ardere si sunt pozitionate in spatele tuburilor arzatorului. Distribuitorul de gaze cu duze, electrozii de aprindere si de ionizare sunt fixati de asemenea pe placa arzatorului. Racordarea conductelor de gaz este posibila atat pe partea dreapta cat si pe cea stanga, in functie de conditiile de spatiu din incaperea cazanului, partea opusa a racordului colectorului de gaz fiind astupata printr-un dop.
Dispozitivele de control ale cazanului sunt situate pe tabloul de comanda in partea frontala a acestuia. Carcasa din otel a cazanului este protejata printr-un strat de vopsea colorata.
![]()
Partea superioara a mantalei

Colector de gaze arse orizontal
Partea posterioara a mantalei
Orificiu pentru conducta de
evacuare a supapei de siguranta
Tur cazan
Element intermediar
Dop
Conducta de distributie retur
Retur cazan
Articulatie cu nuca pentru retur
Element lateral dreapta
Niple cazan
Tirant strangere
Placa de protectie pentru suportul cazanului
(tavita pentru condens)
Suport cazan
Partea posterioara a mantalei - dreapta
Arzator complet
Tabloul electric de comanda si control
Material izolant (front cazan)
Transformator de inalta tensiune (de aprindere)
Tabla de protectie
Manta de protectie front cazan
Articulatie cu nuca pentru tur
Partea posterioa a mantalei - stanga
Patru orificii filetate interior
(racord termostat, manometru, etc).
Supapa racord manometru al
termomanometrului
Suport pentru electroventilul gaz multibloc
Dispozitive de siguranta si reglare
Furnitura standard a cazanului nu cuprinde regulatoare, ci doar panoul electric cu dispozitivul de comanda si control. Panoul electric este echipat cu urmatoarele componente:
intrerupator principal cu lampa de semnalizare (incorporata);
lampa de semnalizare pentru supraincalzire ( termostat de gaze arse)
deblocare "avarie" cu lampa de semnalizare a defectiuni;
comutator alegere regim de functionare manual/automat;
siguranta
fuzibila 2.5 A;
![]()
deblocarea termostatului de siguranta (reglat la 105 C)
deblocarea termostatului de gaze arse (reglat la 70 C)
termostat de reglaj cazan (in domeniul 0-85 C)
Pe panoul de comanda temomanometrul este situat langa locasul regulatorului (central jos).
Senzorul termostatului de gaze arse este pozitionat in colectorul de evacuare gaze arse si in cazul unui tiraj scazut blocheaza functionarea cazanului. Senzorii termostatelor de siguranta, de reglaj, de indicare temperatura si supapa racordului de manometru sunt amplasati in elementul lateral stanga al cazanului.
Nu este recomandabil sa utilizati cazanul fara regulator. Versiunea standard (fara regulator) este pentru clientii care au propriul sistem de reglare si control al centralei termice si anexelor.
Putem livra clientilor urmatoarele regulatoare (regulatoarele sunt livrate in pachete separate care se monteaza pe cazan la fata locului).
REGULATOR TERMIC RVA 43.223
Este un regulator care se monteaza pe cazan si comanda un circuit de producerea apei calde menajere prin cuplarea unei pompe pentru circuitul de ACM si cuplarea unei pompe pentru circuitul de incalzire.
Cazanul si circuitul de incalzire sunt controlate termic, producerea apei calde menajere se regleaza in functie de temperatura de stocare a apei calde si programul de lucru.
Cele mai importante functii ale regulatorului sunt:
reglarea temperaturii circuitului de incalzire cu pompa de circulatie (fara vana de amestec) sau controlul a maximum 4 cazane cuplate in cascada.
schimbarea rapida a temperaturii agentului termic (cresterea sau scaderea) la comutarea automata a regimului de producere prioritara ACM. (cuplare sau decuplare);
comutarea automata a regimului de vara/iarna;
posibilitatea controlarii temperaturii in camera prin cuplarea senzorilor de temperatura QAA 50 sau QAA 70;
adaptarea automata la curbele de temperatura ale cladirii (prin cuplarea QAA 50 sau QAA 70, termostate de camera si de exterior);
bypassarea regulatorului de sarcina la pornirea CAZANULUI
protejarea cazanului impotriva suparaincalzirii;
reglarea temperaturii minime sau maxime a agentului termic;
protectia antiinghet a cladirilor;
protectia pompelor;
programul de incalzire zilnic sau saptamanal;
program de furnizare a apei calde menajere;
posibilitatea cuplarii cu urmatoarele regulatoare (de exemplu) RVA 46.531 si RVA 63.280;
Regulator
termic RVA 46.531
![]()
Este conceput pentru reglarea termica a circuitelor de incalzire cu:
circuit de incalzire cu vana de amestec
pompa pe circuitul de incalzire
Cele mai importante functii ale regulatorului:
reglarea temperaturii apei de alimentare pentru circuitul de incalzire cu vana de amestec;
Schimbarea rapida a temperaturii apei de incalzire (cresterea sau scaderea) la cuplarea sau decuplarea regimului de producere ACM prioritar;
comutarea automata a regimului de vara/iarna;
dispozitiv de control la distanta din camera cu ajutorl QAA 50 sau QAA 70;
adaptarea automata a curbelor de incalzire a edificiilor (prin cuplarea dispozitivelor QAA 50 sau QAA 70);
reglarea temperaturii minime si maxime a temperaturii agentului termic de incalzire;
protectia la inghet a cladirilor;
protectia pompelor;
programul de incalzire zilnic sau saptamanal;
pot lucra impreuna cu urmatoarele regulatoare din seria RVA .(de exemplu) RVA 43.223 si RVA 63.280.
Regulator termic RVA 63.280
Este un regulator pentru reglarea a 2 circuite independente de incalzire cu vana de amestec si cu prioritate ACM. Reglarea depinde de temperatura apei calde stocate si programul de timp.
Cele mai importante functii ale regulatorului sunt:
reglarea a 2 circuite de incalzire independente cu vane de amestec;
schimbare rapida a temoperaturii apei de incalzire (cresterea sau scaderea) la cuplarea sau decuplarea regimului de producere prioritara a ACM;
comtuarea automata a regimului de functionare vara/iarna;
posibilitatea controlului la distanta prin dispozitive montate in camera QAA 50 sau QAA 70
adaptarea automata a curbelor de incalzire a cladirilor (prin conectarea QAA 50 sau QAA 70)
reglarea temperaturii minime si maxime a agentului termic;
protectia la inghet a cladirilor;
program zilnic sau saptamanal;
posibilitatea conectarii umratoarelor regulatoare (de exemplu) RVA 46.531 si RVA 63.280
posibilitatea controlarii cazanului de la distanta prin comanda telefonica.
Regulatoarele se ambaleaza separat si au instructiuni individuale de exploatare si intretinere. Senzorul QAZ 21 face parte din furnitura standard a regulatoarelor mentionate mai sus.
Echipamente optionale care se pot comanda pentru regulatoare si pot fi folosite la:
Senzor extern de temperatura QAC 31 - pentru masurarea temperaturii externe (se monteaza pe perete)
Senzor
de imersie pentru temperatura QAZ 21 - pentru masurarea temperaturii inainte de
vana de amestec, temperatura pe fiecare retur la cuplarea cazanelor in cascada
si temperatura pe circuitul de apa calda menajera;
![]()
Senzor de contact pentru temperatura QAD 21 - pentru masurarea temperaturii inaintea vanei de amestec, temperatura la cuplarea in cascada a cazanelor si temperatura pe circuitul de apa calda menajera.
Dispozitiv digital QAA 50 are urmatoarele functii:
posibilitatea alegerii regimului de incalzire;
posibilitatea corectiei temperaturii camerei;
buton functionare economica.
Dispozitiv digital QAA 70 are urmatoarele functii:
posibilitatea alegerii regimului de incalzire
posibilitatea corectiei temperaturii camerei
buton functionare economica
posibilitatea afisarii separate a temperaturilor pe display
operatii de reglare a functionarii economice
Arzatorul functioneaza in doua trepte de putere (nominala/scazuta), fiecare treapta are propriul electroventil cu regulator incorporat (tip Honeywell) pentru reglarea presiunii gazului.
Principalul element de siguranta este electroventilul Dungs MB-ZRDLE 412 cu doua trepte care functioneaza la putere nominala/scazuta si permite cuplarea unui sistem de control de etanseitate pentru circuitl de gaz al cazanului.
Aprinderea arzatorului se realizeaza prin arc electric. Dupa aprindere, supravegherea flacarii se realizeaza printr-un electrod de ionizare amplasat in celalalt capat al arzatorului. In cazanul in care flacara principala se stinge, electroventilul multibloc se inchide si cazanul este trecut in treapata de "avarie" (se aprinde lampa de "avarie"). Stadiul de avarie poate fi anulat manual dupa o perioada de asteptare de 90 s, prin butonul de "deblocare a regimului de avarie", cu stingerea semnalizarii luminoase a "avariei" .
In cazul in care se opreste accidental alimentarea cu energie electrica, electroventilul gaz multibloc se inchide automat. Dupa ce se reia alimentarea cu gaz cazanul intra in functiune automat.
![]()


Alimentare cu gaz
Transformator de inalta tensiune
conectat prin conductor rezistent la inalta tensiune
Conector
pentru
cablul electrodului de ionizare
Carcasa arzatorului pilot
Electrod de ionizare
Electrod de aprindere
Figura. 3 Arzator pilot
Schema
conexiunilor electrice
![]()

Figura no. 4 Schemaconexiunilor electrice ale cazanului VIADRUS G 100 ECO X0X X - echipat numai cu unitatea de control
A1 AUTOMAT DUNGS DGAI.65F
HL.V. INTRERUPATOR PRINCIPAL (CU LAMPA PREZENTA TENSIUNE INCORPORATA)
IOP1 ELECTROD DE IONIZARE - APRINDERE
IOP2 ELECTROD PRINCIPAL DE IONIZARE FUNCTIONARE
KT CONTROL DE ETANSEITATE
![]()
PR LAMPA DE SEMNALIZARE SUPRAINCALZIRE (GAZE ARSE)
I/II FUNCTIONARE AUTOMATA/MANUALA (SELECTOR MANUAL)
RES./AL. BUTON DE RESETARE/LAMPA DE SEMNALIZARE "AVARIE"
TB TERMOSTAT DE SIGURANTA
TK TERMOSTAT REGLAJ CAZAN
TO ELEMENT DE INTERFATA TC 241 (PROTECTIE ELECTRICA)
TS TERMOSTAT GAZE ARSE
VO ELECTROVENTIL DE SIGURANTA (DUNGS) ARZATOR
V1 ELECTROVENTIL GAZ PILOT (DUNGS)
V 2/1 ELECTROVENTIL TREAPTA I (HONEYWELL)
V2/2 ELECTROVENTIL TREAPTA II (HONEYWELL)
VNT TRANSFORMATOR DE INALTA TENSIUNE
DACA NU ESTE CUPLAT CONTROLUL DE ETANSEITATE, TREBUIE CONECTATE CLEMELE 19 SI 20
![]()


FIGURA 5. Schema de principiu a conexiunilor din panoul de comanda al cazanului VIADRUS G 100 ECO model X0XX pentru panou simplu
A1 AUTOMAT DUNGS DGAI.65F
HL.V. INTRERUPATOR PRINCIPAL (CU LAMPA PREZENTA TENSIUNE INCORPORATA)
IOP1 ELECTROD DE IONIZARE - APRINDERE
IOP2 ELECTROD DE IONIZARE - FUNCTIONARE
KT CONTROL DE ETANSEITATE
![]()
PR LAMPA DE SEMNALIZARE SUPRAINCALZIRE (GAZE ARSE)
I/II FUNCTIONARE AUTOMATA/MANUALA (SELECTOR MANUAL)
RES. BUTON DE RESETARE
TB TERMOSTAT DE SIGURANTA
TK TERMOSTAT DE REGLAJ
TO ELEMENT DE INTERFATA TC 241 (PROTECTIE ELECTRICA)
TS TERMOSTAT GAZE ARSE
VO ELECTROVENTIL DE SIGURANTA ARZATOR
V1 ELECTROVENTIL GAZ PILOT
V2/1 ELECTROVENTIL TREAPTA I
V2/2 ELECTROVENTIL TREAPTA II
VNT TRANSFORMATOR DE INALTA
TENSIUNE (DE APRINDERE)

Figura 6 Schema conexiunilor electrice la cazanul VIADRUS G 100 ECO model X1XX pentru panou echipat cu dispozitiv si regulator RVA 43.223
A1 AUTOMAT DUNGS DGAI.65F
![]()
B2 SENZOR DE TEMPERATURA TUR CAZAN QAZ21
B3 SENZOR DE TEMPERATURA APA CALDA MENAJERA QAZ21, QAD21
B5 TERMOSTAT DE CAMERA QAA50, QAA70
B9 SENZOR DE TEMPERATURA PENTRU EXTERIOR QAC31
HL.V. INTRERUPATOR PRINCIPAL (CU LAMPA PREZENTA TENSIUNE INCORPORATA)
IOP1 ELECTROD DE IONIZARE - APRINDERE
IOP2 ELECTROD DE IONIZARE - FUNCTIONARE
KT CONTROL DE ETANSEITATE
PR LAMPA DE SEMNALIZARE SUPRAINCALZIRE (GAZE ARSE)
Q1 POMPA CAZANULUI PENTRU CIRCUITULUI DE INCALZIRE
Q3 POMPA PE CIRCUITUL DE APA CALDA SANITARA
I/II FUNCTIONARE AUTOMATA/MANUALA (SELECTOR MANUAL)
RES./AL. BUTON DE RESETARE/LAMPA DE SEMNALIZARE "AVARIE"
TB TERMOSTAT DE SIGURANTA
TK TERMOSTAT DE REGLAJ CAZAN
TO ELEMENT DE INTERFERENTA TC 241 (PROTECTIE ELECTRICA)
TS TERMOSTAT GAZE ARSE
VO ELECTROVENTIL DE SIGURANTA ARZATOR
V1 ELECTROVENTIL GAZ PILOT
V2/1 ELECTROVENTIL TREAPTA I
V2/2 ELECTROVENTIL TREAPTA II
VNT TRANSFORMATOR DE INALTA TENSIUNE (DE APRINDERE)
DACA NU ESTE CUPLAT SISTEMUL DE CONTROL DE ETANSEITATE, TREBUIE UN SUNT ELECTRIC INTRE CLEMELE 19 SI 20.
Figura 7. Schema de principiu a conexiunilor din panoul de comanda a cazanului VIADRUS G 100 ECO model XIXX - echipat cu regulator RVA 43.223
A1 AUTOMAT DUNGS DGAI.65F
B2 SENZOR DE TEMPERATURA TUR CAZAN QAZ21
B3 SENZOR DE TEMPERATURA PENTRU APA CALDA MENAJERA QAZ21, QAD21
B5 TERMOSTAT DE CAMERA QAA50, QAA70
B9 SENZOR TEMPERATURA DE EXTERIOR QAC 31
HL.V. INTRERUPATOR PRINCIPAL (CU LAMPA
PREZENTA TENSIUNE INCORPORATA)
![]()
IOP1 ELECTROD DE IONIZARE - APRINDERE
IOP2 ELECTROD DE IONIZARE - FUNCTIONARE
KT CONTROL DE ETANSEITATE
PR LAMPA DE SEMNALIZARE SUPRAINCALZIRE (GAZE ARSE)
Q1 POMPA CAZANULUI PENTRU CIRCUITUL DE INCALZIRE
Q3 POMPA PE CIRCUITUL DE APA CALDA SANITARA
I/II FUNCTIONARE AUTOMATA/MANUALA (SELECTOR MANUAL)
RES BUTON DE RESETARE MANUALA - AVARIE
RVA43 223 REGULATOR L&G PE CAZAN
TB TERMOSTAT DE SIGURANTA
TK TERMOSTAT DE REGLAJ
TO ELEMENT DE INTERFATA TC 241 (PROTECTIE ELECTRICA)
TS TERMOSTAT DE GAZE ARSE
VO ELECTROVENTIL DE SIGURANTA ARZATOR
V1 ELECTROVENTIL GAZ PILOT
V2/1 ELECTROVENTIL TREAPTA I
V2/2 ELECTROVENTIL TREAPTA II
VNT TRANSFORMATOR DE INALTA TENSIUNE (DE APRINDERE)
Figura 8. Schema conexiunilor electrice la cazanul VIADRUS G 100 ECO model X2XX - echipat cu regulator RVA 43.223 si RVA 46.531
A1 AUTOMAT DUNGS DGAI.65F
B1 SENZOR DE TEMPERATURA PENTRU COMANDA VANA DE AMESTEC QAZ21, QAD21
B2 SENZOR DE TEMPERATURA TUR CAZAN QAZ21
B3 SENZOR DE TEMPERATURA APA CALDA MENAJERA QAZ21, QAD21
B5 TERMOSTAT DE CAMERA QAA50, QAA70
B9 SENZOR DE TEMPERATURA PENTRU EXTERIOR QAC31
B10 SENZOR DE TEMPERATURA PE
COLECTORUL DE TUR
![]()
HL.V. INTRERUPATOR PRINCIPAL (CU LAMPA PREZENTA TENSIUNE INCORPORATA)
IOP1 ELECTROD DE IONIZARE - DE APRINDERE
IOP2 ELECTROD DE IONIZARE - FUNCTIONARE
KT CONTROL DE ETANSEITATE
PR LAMPA DE SEMNALIZARE SUPRAINCALZIRE (GAZE ARSE)
Q1 POMPA DE CIRCULATIE A CAZANULUI
Q2 POMPA PE CIRCUITUL DE INCALZIRE
Q3 POMPA PE CIRCUITUL DE APA CALDA SANITARA
I/II FUNCTIONARE AUTOMATA/MANUALA (SELECTOR MANUAL)
RES./AL. BUTON DE RESETARE/LAMPA DE SEMNALIZARE "AVARIE"
RVA43 223 REGULATORUL CAZANULUI
RVA46 531 REGULATORUL CIRCUITULUI DE INCALZIRE
TB TERMOSTAT DE SIGURANTA
TK TERMOSTAT DE REGLAJ CAZAN
TO ELEMENT DE INTERFATA TC 241 (PROTECTIE ELECTRICA)
TS TERMOSTAT GAZE ARSE
VO ELECTROVENTIL DE SIGURANTA ARZATOR
V1 ELECTROVENTIL GAZ PILOT
V 2/1 ELECTROVENTIL TREAPTA I
V2/2 ELECTROVENTIL TREAPTA II
VNT TRANSFORMATOR DE INALTA TENSIUNE DE APRINDERE
Y VANA DE AMESTEC (CU 3 CAI)
DACA NU ESTE CUPLAT SISTEMUL DE CONTROL DE ETANSEITATE, TREBUIE UN SUNT ELECTRIC INTRE CLEMELE 19 SI 20.
![]()


Figura 9. Schema de principiu a conexiulor din panoul de comanda la cazanul VIADRUS G 100 ECO model X2XX - echipat cu regulator RVA 43.223 si RVA 46.531
A1 AUTOMAT DUNGS DGAI.65F
![]()
B1 SENZOR DE TEMPERATURA PENTRU COMANDA VANEI DE AMESTEC: QAZ1 si QAD21
B2 SENZOR DE TEMPERATURA TUR CAZAN QAZ21
B3 SENZOR DE TEMPERATURA PENTRU APA CALDA MENAJERA QAZ21
B5 TERMOSTAT DE CAMERA QAA50, QAA70
B9 SENZOR DE TEMPERATURA PENTRU EXTERIOR QAC31
B10 SENZOR DE TEMPERATURA PE
COLECTORUL DE TUR
HL.V. INTRERUPATOR PRINCIPAL (CU LAMPA PREZENTA TENSIUNE INCORPORATA)
IOP1 ELECTROD DE IONIZARE - APRINDERE
IOP2 ELECTROD DE IONIZARE - FUNCTIONARE
KT CONTROL DE ETANSEITATE
PR LAMPA DE SEMNALIZARE SUPRAINCALZIRE (GAZE ARSE)
Q1 POMPA CAZANULUI PENTRU CIRCUITUL DE INCALZIRE
Q2 POMPA PE FIECARE CIRCUIT DE INCALZIRE
Q3 POMPA PE CIRCUITUL DE APA CALDA SANITARA
RVA43 223 REGULATORUL CAZANULUI
RVA46 531 REGULATORUL CIRCUITULUI DE INCALZIRE
I/II FUNCTIONARE AUTOMATA/MANUALA (SELECTOR MANUAL)
RES. BUTON DE RESETARE MANUALA - AVARIE
TB TERMOSTAT DE SIGURANTA
TK TERMOSTAT DE REGLAJ
TS TERMOSTAT GAZE ARSE
TO ELEMENT DE INTERFATA TC 241 (PROTECTIE ELECTRICA)
VO ELECTROVENTIL DE SIGURANTA ARZATOR
V1 ELECTROVENTIL GAZ PILOT
V2/1 ELECTROVENTIL TREAPTA I
V2/2 ELECTROVENTIL TREAPTA II
VNT TRANSFORMATOR DE INALTA TENSIUNE (DE APRINDERE)
Y VANA DE AMESTEC (CU 3 CAI)
![]()


Figura 10. Schema conexiunilor electrice la cazanul VIADRUS G 100 ECO model X3XX - echipat cu regulator RVA 63.280
A1 AUTOMAT DUNGS DGAI.65F
B1, B12 SENZORII DE TEMPERATURA PENTRU COMANDA VANEI DE AMESTEC QAZ21, QAD21
B2 SENZOR DE TEMPERATURA TUR CAZAN QAZ21
B3, B31 SENZOR DE TEMPERATURA APA CALDA MENAJERA QAZ21, QAD21
B5, B6 TERMOSTAT DE CAMERA QAA50, QAA70
B9 SENZOR DE TEMPERATURA PENTRU
EXTERIOR QAC31
![]()
B10 SENZOR DE TEMPERATURA PE
COLECTORUL DE TUR
HL.V. INTRERUPATOR PRINCIPAL
IOP1 ELECTROD DE IONIZARE APRINDERE
IOP2 ELECTROD DE IONIZARE - FUNCTIONARE
KT CONTROL DE ETANSEITATE
PR LAMPA DE SEMNALIZARE SUPRAINCALZIRE
Q1 POMPA DE CIRCULATIE A CAZANULUI / CIRCUITULUI DE INCALZIRE
Q2 POMPA PE CIRCUITUL DE INCALZIRE
Q3 POMPA PE CIRCUITUL DE APA CALDA SANITARA
I/II FUNCTIONARE AUTOMATA/MANUALA (SELECTOR MANUAL)
RES./AL. BUTON DE RESETARE/LAMPA DE SEMNALIZARE "AVARIE"
RVA63 280 REGULATORUL INSTALATIEI
TB TERMOSTAT DE SIGURANTA
TK TERMOSTAT DE REGLAJ CAZAN
TO ELEMENT DE INTERFATA TC 241 (PROTECTIE ELECTRICA)
TS TERMOSTAT GAZE ARSE
VO ELECTROVENTIL DE SIGURANTA ARZATOR
V1 ELECTROVENTIL GAZ PILOT
V2/1 ELECTROVENTIL TREAPTA I
V2/2 ELECTROVENTIL TREAPTA II
VNT TRANSFORMATOR DE INALTA TENSIUNE DE APRINDERE
Y1 VANA DE AMESTEC PE CIRCUITUL DE INCALZIRE 1
Y2 VANA DE AMESTEC PE CIRCUITUL DE INCALZIRE 2
DACA NU ESTE CUPLAT SISTEMUL DE CONTROL DE ETANSEITATE, TREBUIE UN SUNT ELECTRIC INTRE CLEMELE 19 SI 20.
![]()

Figura 11. Schema de principiu a conexiunilor din
panoul de comanda a cazanului VIADRUS G 100 ECO X3XX - echipat cu regulator RVA
63.280
![]()

A1 AUTOMAT DUNGS DGAI.65F
B1, B12 SENZORII DE TEMPERATURA PENTRU COMANDA VANEI DE AMESTEC QAZ21, QAD21
B5, B6 TERMOSTAT DE CAMERA QAA50, QAA70
B2 SENZOR DE TEMPERATURA TUR CAZAN QAZ21
B3, B31 SENZOR DE TEMPERATURA APA CALDA MENAJERA QAZ21, QAD21
B9 SENZOR DE TEMPERATURA EXTERIOR QAC31
HL.V. INTRERUPATOR PRINCIPAL (CU LAMPA DE PREZENTA TENSIUNE INCORPORATA)
IOP1 ELECTROD DE IONIZARE - DE APRINDERE
IOP2 ELECTROD DE IONIZARE - FUNCTIONARE
KT CONTROL DE ETANSEITATE
Po SIGURANTA FUZIBILA 2.5 A
PR LAMPA DE SEMNALIZARE SUPRAINCALZIRE
Q1 POMPA CAZANULUI PENTRU CIRCUITUL DE INCALZIRE
Q2 POMPA PE FIECARE CIRCUIT DE INCALZIRE
Q3 POMPA PE CIRCUITUL DE APA CALDA SANITARA
I/II FUNCTIONARE AUTOMATA/MANUALA (SELECTOR MANUAL)
RES BUTON DE RESETARE
RVA63 280 REGULATORUL INSTALATIEI
TB TERMOSTAT DE SIGURANTA
TK TERMOSTAT DE REGLAJ
TS TERMOSTAT GAZE ARSE
TO ELEMENT DE INTERFATA TC 241 (PROTECTIE ELECTRICA)
VO ELECTROVENTIL DE SIGURANTA ARZATOR
V1 ELECTROVENTIL GAZ PILOT
V2/1 ELECTROVENTIL TREAPTA I
V2/2 ELECTROVENTIL TREAPTA II
VNT TRANSFORMATOR DE INALTA TENSIUNE (DE APRINDERE)
Y1 VANA DE AMESTEC PE CIRCUITUL DE INCALZIRE 1
Y2 VANA DE AMESTEC PE CIRCUITUL DE INCALZIRE 2
Instalare
![]()
Reguli si norme
Cazanul poate fi instalat numai de un service autorizat pentru instalatiile pe gaz. Pentru instalarea cazanului trebuie sa existe un proiect.
Cazanul trebuie sa fie cuplat la sistemul de incalzire, distribuitor de gaz, retea electrica, sau cos si la circuitul de apa calda menajera conform normelor in vigoare.
Posibilitati de amplasare
Cazanul VIADRUS G 100 ECO este conceput pentru a fi pozitionat in spatii conforme cu normele in vigoare. Cazanul se poate amplasa in incaperi separate de edificiul locuit.
Amplasarea cazanului in conformitate cu normele antiincendiu:
Amplasarea la sol:
cazanul trebuie sa fie asezat pe un postament de sprijin ignifug cu o inaltime de min. 50 mm, zidul de sprijin sau postamentul trebuie sa depaseasca in toate partile cazanul cu 15 mm.
Distanta de siguranta fata de materiale inflamabile:
trebuie sa se pastreze distanta de siguranta necesara de 200 mm fata de materialele inflamabile cu nivel de inflamabilitate B, C1 si C2 (conform normelor in vigoare)
pentru materiale inflamabile cu nivel de inflamabilitate C3, care ard foarte usor (de exemplu hartie, lemn, carton, plastic etc.) distanta de siguranta este 400 mm
atunci cand nu se cunoaste nivelul de inflamabilitate al materialului trebuie sa se mentina o distanta de 400 mm.
Nivele de inflamabilitate
Tabelul nr. 8
|
Nivele de combustibilitate | |
|
A - neimflamabile |
Granit, caramizi, caramizi refractare |
|
B - substante greu imflamabile |
Zidarie cu lemn ingropat |
|
C1 - greu inflamabile |
Lemn de stejar |
|
C2 - mediu inflamabile |
Lemn de pin, ebonita |
|
C3 - usor inflamabile |
Asfalt carbon, carton, celuloza, polietilena, PVC etc. |
Inaintea punerii in functiune a cazanului trebuie sa:
Pozitionarea cazanului pentru o buna manevrabilitate:
![]()
in fata cazanului trebuie sa fie
lasat un spatiu egal cu adancimea cazanului + 500 mm;
in spatele cazanului spatiul dintre partea posterioara a cazanului si perete trebuie sa fie 400 mm;
in lateralul cazanului spatiul liber intre 2 cazane alaturate (pe partea de alimentare cu gaze) trebuie sa fie de 600 mm;
distanta minima intre partile laterale ale cazanului este 100 mm.

Figura 12. Amplasarea cazanelor in camera cazanelor
Tipuri de conexiuni recomandate pentru regulatoarele RVA
Este posibil datorita creerii interconectarii mutuale a regulatoarelor sa se realizeze un spectru larg de posibilitati solutionandu-se astfel sisteme complicate de incalzire inclusiv o eventuala extindere in viitor a utilizarii dispozitivelor de reglare.
B5 - termostat de ambianta este posibil sa se utilizeze un termostat de camera QAA 30 sau un termostat de camera QAA 70 cu comanda la distanta, pentru masurarea unor parametri necesari regulatorului RVA
![]()
B1, B2, B31 si B10 - este posibil sa se utilizeze un senzor de imersie de temperatura QAZ 21
(senzor in teaca) sau senzor de temperatura tip QAD 21, (senzor de suprafata).
B9 - este posibil sa se utilizeze numai un termostat de exeterior de temperatura QAC 31

Sistem cu un singur circuit de incalzire si un circuit de preparare apa calda menajera
K - cazan VIADRUS G 100 ECO
O - boiler
T - temperatura masurata
Q1 - pompa pe circuitul de incalzire
Q3 - pompa pe circuitul de apa calda sanitara
B2 - senzor cazan
B3 - senzor circuit apa calda menajera
B5 - senzor de camera
B9 - senzor extern de temperatura
CAZAN CU BOILER PENTRU APA CALDA MENAJERA INCORPORAT.
Figura nr. 13 schema hidraulica a conexiunilor cazanului VIADRUS G 100 ECO echipat cu RVA 43.223
Sistem cu doua circuite de incalzire echipate cu pompa de
circulatie si un circuit de preparare apa calda menajera
K - cazan VIADRUS G 100 ECO
O - boiler
T - temperatura masurata
Q1 - pompa pe primul circuit de incalzire
Q2 - pompa pe al doilea circuit de incalzire
Q3 - pompa pe circuitul boilerului (apa calda menajera)
Y1 - vana cu trei cai
B1 - senzor apa calda
B2 - senzor cazan Primul circuit Al doilea circuit
B3 - senzor circuit apa calda menajera de incalzire de incalzire
CAZAN CU BOILER PENTRU APA
CALDA MENAJERA INCORPORAT.
B5 - senzor de camera
B9 - senzor de exterior pentru temperatura
Figura nr. 14 Schema hidraulica a conexiunilor cazanului VIADRUS G 100 ECO model X2XX echipat cu regulator RVA 43.223 si RVA 46.531
![]()

Sistem cu doua circuite de incalzire cu pompa si preparare
apa calda menajera
K - cazan VIADRUS G 100 L

O - boiler
T - temperatura masurata
Q1 - pompa de circulatie pe primul circuit de
incalzire
Q2 - pompa de circulatie pe al doilea circuit de
incalzire
Q3 - pompa pe circuitul bolierului
(preparare apa calda menajera)
Y1 - vana cu trei cai pentru primul circuit
Y2 - vana cu trei cai pentru cel de-al
doilea circuit
B1 - senzor apa calda
Primul circuit Al doilea circuit
de incalzire de incalzire
CAZAN CU BOILER PENTRU APA CALDA MENAJERA INCORPORAT.
Figura 15. Schema hidraulica a conexiunilor cazanului VIADRUS G 100 ECO model X3XX echipat cu regulator RVA 63.280
B3 - senzor circuit apa calda menajera
B5 - senzor de camera
B9 - senzor exterior de temperatura
Cascada de la 2 la 4 cazane si maximum 13 circuite de incalzire,
cu butelie de amestec, fara preparare apa calda menajera
T - temperatura masurata
Q1 - pompa de circulatie pe fiecare cazan
Q2 - pompa pe fiecare circuit de incalzire
Y1 - vana cu trei cai
B2 - senzor cazan
B5 - senzor de camera
B9 - senzor de temperatura pentru exterior
B10 - senzorul cascada a temperaturii apei la iesirea
din butelia de amestec
![]()
Cascada de 2 la max. 4 cazane de
incalzire, max 13 circuite

de incalzire, cu butelie de amestec si circuit de preparare apa
calda menajera.
T - temperatura masurata
Q1 - pompa de circulatie pentru fiecare cazan
Q2 - pompa pe fiecare circuit de incalzire
Q3 - pompa circuitului de apa calda menajera
(pentru boiler)
Y1 - vana cu trei cai pe circuitul
de incalzire
B2 - senzor cazan
B3 - senzor apa calda menajera
B5 - senzor de camera
B9 - senzor de temperatura
pentru exterior
B10 - senzorul de temperatura
a apeila iesirea din butelia
de amestec Figura nr. 17 schema hidraulica a conexiunilor cazanelor
VIADRUS G 100 ECO XXXX montate in cascada
Cascada de la 2 la 4 cazane de incalzire si maximum 13 circuite de
incalzire, butelie de amestec si un cazan dotat cu boiler de preparare
apa calda menajera.
T - temperatura masurata
Q1 - pompa pe fiecare cazan
Q2 - pompa pe fiecare circuit de incalzire
Q3 - pompa pentru preparatorul de apa calda
menajera
Y3 - vana cu 3 cai pe circuitul de preparare
apa calda menajera;
Y1 - vana cu trei cai pentru circuitele
de incalzire
B2 - senzor cazan
B3 - senzor apa calda menajera
B5 - senzor de camera
B9 - senzor exterior de temperatura
B10 - senzorul de temperatura a apei
la iesirea din butelia de amestec Figura nr. 18 Schema hidraulica a conexiunilor cazanelor VIADRUS G
100 ECO XXXX montate in cascada
![]()

Comanda, livrare si montaj
6.1. Comanda
In comanda trebuie sa se precizeze:
a. Marimea cazanului si reglajele cerute.
Reglaje: Livrare standard: unitate
de control, termomanometru si
dopuri unitate
de control, regulator RVA 43.223, termostat cu senzor de imersie QAZ 21 unitate
de control, regulator RVA 43.223, regulator RVA 46.531, termostat cu senzor
de imersie QAZ 21 unitate
de control, regulator RVA 63.280, termostat cu senzor de imersie tip QAZ
21, senzor de exterior QAC 31 Pentru
variantele 1 - 3 - conectarea regulatorului la tabloul electric trebuie
realizata la fata locului

b. Tipul senzorilor:
senzor exterior de temperatura QAC 31
senzor de imersie de temperatura QAZ 21 (se poate utiliza pentru masurarea temperaturii apei calde menajere).
Senzor de temperatura de suprafata QAD 21
c. Tipul aparaturii digitale:
Termostat de camera QAA 70
![]()
Termostat de camera QAA 50
Livrarea accesoriilor
Cazanul VIADRUS G 100 ECO este livrat pe palet, asamblat, in ambalat in carton. La cererea clientului cazanul poate fi livrat dezasamblat (in componente).
Accesorii la cererea clientului:
regulator (conform codului de comanda) cu 1 senzor de imersie QAZ 21 (1 - 3) si 1 senzor de exterior QAC 31 (3)
cantiatea de senzori comandata (vezi capitolul 4.2. si 6.1.)
tipul de aparatura comandata (vezi capitolul 4.2. si 6.1.)
control de etanseitate al electrovanelor
La cererea clientului, accesoriile nu sunt incluse in pretul cazanului.
Montaj
Pozitionati cazanul conform cerintelor de accesibilitate si manevrabilitate (conform capitolului 5) respectand proiectul centralei termice. Cazanul nu trebuie sa fie ridicat pentru racordarea lui la conductele de apa si gaz. Cazanul trebuie asezat pe un suport ignifug, perfect drept si orizontal.
Racordarea sistemului de incalzire trebuie sa fie realizata conform proiectului.
Inlocuirea termostatului de gaze arse nu este permisa decat cu unul original sau componente originale. Inlocuirea sigurantei fuzibile se va face doar cu una originala sau una de acelas curent la acceasi tensiune. Inlocuirea arcului clapetei de explozie gaze arse nu este permisa decat cu unul original. Blocarea clapetei poate duce la distrugerea utilajului.

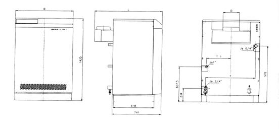
Figura. 19 Dimensiunile si pozitionarea racordurilor
Racordarea la cos - aceasta operatie
se poate faze numai cu personal autorizat si competent. Observatie: colectorul
orizontal de gaze arse este realizat din doua parti, care in timpul
transportului se gasesc sub mantaua superioara. Inainte de a executa racordarea
la cos trebuie sa indepartati mantaua superioara, sa scoateti partea
poasterioara a colectorului si sa insurubati ambele parti utilizand 7 suruburi
M4x10, saibe 4.3 si
piulite M4, dupa care se se monteaza din nou manataua superioara (la
cazan). Introduceti senzorul
termostatului de gaze arse prin orificiul de 6 mm din partea stanga a colectorului de gaze arse
si fixati-l utilizand presetupa (surubul F/H 4.2x9.5), care face parte din
furnitura.
![]()
Racordati cazanul la conducta cu gaz
Racordarea regulatorului
Demontati partea superioara si frontala a mantalei. Slabiti cele 2 suruburi laterale, care fixeaza panoul electric. Scoateti panoul electric din pinii, rotiti-l in jos cu aprox. 90 si repuneti-l in pinii din partea de jos a panoului.
Conectati cazanul la reteua electrica prin cabluri cu sectiune minima de 3X0.5 mm2 (acest cablu nu face parte din furnitura). Urmatoarele puncte (6.3. - 6.7.). trebuie sa se realizeze numai in cazul instalarii regulatoarelor.
Scoateti capacele de frontul panoului de comanda in locul carora se vor monta regulatoarele.
Pentru versiunea 1 - capacul mare
Pentru versiunea 2 - toate capacele
Pentru versiunea 3 - un capac mare si unul mic
Scoateti conexiunile dintre clemele 23-24
Conectati la bornele corespunzatoare de pe regulator conectorii corespunzatori. Instalati terminalele WAGO si si prindeti-l sus in consola prin orificiile din panou, introduceti regulatorul si fixati-l prin 2 suruburi. Fixati terminalul panoului WAGO I confrom schemelor de utilizare ale regulatorului. Daca regulatorul are un conductor de tip no.54, acesta trebuie desurubat de pe conectorul regulatorului (vezi schema alaturata a regulatorului).
Conectati Senzorul de imersie B2 (QAZ 21) la regulator, introduceti capilarul senzorului de ambianta prin bucsa izolatoare din tabloul electric al carui orificiu se afla in partea stanga a panoului.
Conectati ceilalti senzori conform proiectului. (fara conectarea senzorului exterior de temperatura QAC 31 regulatorul nu poate functiona automat.)

manta superioara
surub
panoul de montat
regleta pin
partea frontala a mantalei
Figura no. 20 Pozitia de montaj a
panoului electric al cazanului VIADRUS G 100
ECO XXXX
![]()

Umplerea instalatiei cu apa. Apa pentru umplerea cazanului si a sistemului de incalzire tebuie sa fie limpede si incolora, fara urme de ulei, de particule in suspensie si substante agresive din punct de vedere chimic. Duritatea apei tebuie sa fie conform cu standardele in vigoare (P.T. - ISCIR - C18), in cazul in care duritatea apei nu este conforma cu norma mentionata, aceasta apa trebuie sa fie tratata.
Sistemul si cazanul trebuie sa fie perfect aerisite dupa ce s-a umplut sistemul si cazanul cu apa.
Reglaje utilizate pentru tipul de regulator RVA.trebuie sa fie in concordanta cu instructiunile
atsate lor.
Pe timpul sezonului de incalzire trebuie sa se mentina intotdeauna sistemul plin cu apa, sa se efectueze regulat evacuarea aerului din sistem si sa completeze apa pierduta. Apa din cazan si sistem nu trebuie sa fie evacuata decat in cazuri exceptionale cum ar fi reparatii etc. Sistemul poate fi reumplut cu apa numai dupa ce cazanul este racit.
Punerea in functiune
Punerea in functiune a cazanului, reglarea puterii termice, reparatiile sau alte operatii conexe, pot fi efectuate numai de personalul service, special organizat si autorizat pentru operatiile mentionate mai sus.
Verificati urmatoarele inaintea operatiei de punere in functiune a cazanului
se verifice:
a. Verificati ca sistemul este umplut cu apa, manometrul indica p>1.5 bar, (iese apa pe toate aerisirile).
b. Verificati ca reglarea termostatelor:
termostat de siguranta 105 C (reglat din fabrica);
termostat cazan 0 - 85 C
termostat gaze arse 70 C (reglat din fabrica);
c. Verificati ca presiune de alimentare cu gaz inaintea cazanului > 18 mbar(1.8 kPa) si evacuati aerul+ din racordurile de gaz.
d. Verificati ca conectarea la reteaua electrica 230 V/50 Hz cu impamantare corecta si comutarea termostatelor (cazan si termostat gaze arse) la valorile prescrise
e. Verificati ca racordarea la cos
Punerea in functiune
a. Cazan echipat doar cu regulatorul propriu fara alte regulatoare:
Deschideti aerisirile si umpleti instalatia de incalzire si cazanul cu apa.
Comutati intrerupatorul I/II in pozitia I - "manual'
![]()
Pozitia II
- "regimul automat" nu este functional daca nu a fost introdus (conectat) un
alt regulator. In timpul functionarii normale, pozitia I si II fac posibila
adoptarea sarcinii arzatorului cu necesarul de caldura al circuitului de
incalzire cu ajutorul pompei de recirculare ai al arzatorului.
Daca totul este in regula se comanda pornire a programului de aprindere al arzatorului. Scanteia este initiata timp de 5 secunde. Dupa vizarea flacarii pilot este comandata aprinderea focului principal. Flacara pilot si flacara principal se suprapun timp de 5 secunde, timp in care trebuie sa se faca aprinderea arzatorului. In cazul in care flacara principala nu este sesizata de supraveghetorul de flacara se declanseaza avaria (vezi fig. 26). Daca a aparut semnalul de avarie este necvesara deblocarea manuala a intrerupatorului si dupa corectarea cauzei care a dus la imposibilitatea aprinderii, se va face o noua manevra den pornire (vezi cap. 11).
Reglati puterea cazanului conform cap. 7.3.
Efectuati teste de incalzire
b. Cazanul este echipat cu cateva regulatoare:
Deschideti aerisirile si umpleti instalatia de incalzire si cazanul cu apa.
Comutati intrerupatorul principal in pozitia I (functionarea automata) Pozitia II - functionare automata nu este functionala daca nu a fost introdus (conectat) un regulator in timpul functionarii normale, pozitia I si II fac posibil adaptarea sarcinii arzatorului cu necesarul de caldura al circuitului de incalzire cu ajutorul pompei de recirculare si al arzatorului.
Daca totul este in regula, prima treapta a arzatorului se aprinde (putere termica scazuta), in cazul in
care este necesara o putere termica mai mare va porni cea de-a doua treapta a arzatorului (putere
nominala). In cazul in care s-a incheita ciclul de pornire si arzatorul nu porneste pe tebloul de control
se va aprinde lamapa de semnalizare avarie (vezi figura 26). Daca a aparut semnalul de avarie este
necvesara deblocarea manuala a intrerupatorului si dupa corectarea cauzei care a dus la
imposibilitatea aprinderii, se va face o noua manevra den pornire (vezi cap. 11). Intr-o segventa
operationala normala treapta I si II-a arzatorului sunt commutate automat conform necesarului d
caldura. Modul de comutare (pornirea si oprirea lor) este comandanta
Reglati puterea cazanului conform cap. 7.3. Pentru testarea incalzirii reglati regulatorul in regimul "evacuare rapida prin cos". In acest regim de functionare caznul lucreaza la putere nominala (cu toate reglajele regulatorului).
Efectuati teste de incalzire
REGLAREA PUTERII CAZANULUI
Puneti in functiune cazanul.
Masurati presiunea de intrare a gazului.
Inainte de regla cazanul lasati-l sa functioneze o perioada de timp (pentru stabilizarea presiunii pe arzator).
Cuplati manometrele (tuburi U) la punctele de masura presiune la intrarea si iesirea electrovanei multibloc (vezi figura 21).
Masurati
presiunea, daca nu corespunde puterii nominale (vezi tabelul 2) - reglati presiunea gazului (presiunea gazului
stabilita in prealabil) ca in tabelul 2.
![]()
Debitul de gaz pentru o putere scazuta poate fi reglata utilizand sistemul de reglaj cu surub si piulita.
Verificati valoarea de CO2, CO, NOX din gazele arse.

Magnet, treapta a doua V2
Reglarea debitului de gaz pentru o putere scazuta
Magnet, treapta intaia de la V1 la V2
Iesirea gazelor spre arzator
Flansa de retur cu priza pentru masurarea presiunii gazelor pe duze
Locul de cuplare a vanei de gaz cu arzatorul de aprindere (pilot)
Carcasa filtrului
Placuta de reglaj
Conector pentru conexiuni
electrice (conductor no.50)
Capacul regulatorului -
reglarea debitului de gaz
pentru putere nominala
Alimentarea cu gaz
pentru electroventilul multibloc
Flansa de tur
Figura 21. Vana multibloc DUNGS MB - ZRDLE 412 B01 S22
(fara control de etanseitate, cu vana pentru arzatorul pilot)
surub de reglare
Pentru reglaje slabiti suruburile cu cap cilindric
de fixare a placii
deschideti clapeta de siguranta
reglati presiunea de iesire cu surubelnita
Figura 23 Reglarea debitului pentru puterea nominala
Rotiti suruburile de reglareRotiti la dreapta: Reduceti debitul
Rotiti la stanga: cresteti debitul
Strangeti din nou suruburile cu cap cilindric.
Fig. 22 Reglarea debitului de gaz pentru sarcina mica (la pornire)
![]()

Sistemul de control de etanseitate al electrovanelor de gaz
Semnalizarea neetansarii si

butonul de "resetare" system Semnalizare "sistem etans" Conector pentru conexiunile electrice ale controlului de etanseitate
(conductorul nr. 53)
Figura 24. Sistemul de control de etanseitate gaz VPS 504
Pe electrovana
multibloc este prevazut un lacas special pentru montarea sistemului de control
etanseitate. Sistemul de control etanseitate poate fi prins pe vana de gaz
multibloc la stanga sau la dreapta, conform pozitiei de alimentare cu gaz.

4 orificii pentru fixare
Orificiile pentru racordarea sistemului de control de prin suruburi garnituri
etanseitate la vana multibloc (inainte de montaj inde
partati dopurile de protectie din plastic)
Figura 25. Vana multibloc cu sistemul de control de etanseitate (racordarea conductelor de alimentare cu gaz se face prin partea stanga - pentru a racorda la dreapta rotiti in oglinda)
![]()
8. Operatii de exploatare pentru utilizator
Cazanul functioneaza automat conform reglajelor efectuate de dispozitivele de reglare si regulatoarele montate, iar utilizatorul efectueaza numai urmatoarele operatii
Pornirea si oprirea cazanului prin butonul de pe panoul de comanda a cazanului.
Controlul functionarii cazanului prin intermediul regulatoarelor.
Reglarea si verificarea temperaturii apei calde cerute prin modul de operare manual "0" si sau
automat "AUTO", valoare reglata prin termostatul de lucru al cazanului (0-85sC).
Controlul temperaturii de incalzire.
Comutarea intre manual (cazanul este controlat numai de termostatul cazanului) si operatiile
automate (cazanul este controlat de regulator).
In cazul unor defectiuni se aprinde lampa de semnalizare a defectiuni pe tabloul de control. In
cazul unei pene de curent, arzatorul este decuplat si la revenirea tensiunii pe retea arzatorul este
recuplat automat. Resetarea defectiunii se efectueaza prin butonul "reset" de pe tabloul de
comanda.
Deblocarea termostatului de siguranta. Atunci cand cazanul este oprit de termostatul de
siguranta se aprinde pe tabloul de comanda lampa de semnalizare "SUPRAINCALZIRE".
Deblocarea termostatului se face prin resetarea manuala a butnoului (BT).
Deblocarea termostatului de gaze arse. Atunci cand cazanul este oprit de termostatul de gaze
arse se aprinde pe tabloul de comanda lampa de semnalizare "SUPRAINCALZIRE". Deblocarea
termostatului gazelor arse este se face prin resetare manuala a butonului (BT).
Intrerupator principal Lampa de semnalizare
"Supraincalzire" Buton de
deblocarea cu Sigurante
fuzibile 2.5 A

lampa de semnalizare "AVARIE" Termometru (Termomanometru)
termomanometru (cu
termometru si manometru incorporat) manometru

Lampa semnalizare
termostat gaze arse
(resetare manuala)
Figura no. 26 tablou de comanda standard al cazanului Viadrus G 100 ECO XXXX
IMPORTANT
![]()
Cazanul poate fi utilizat numai de catre persoane adulte.
Cazanul este racordat la o retea electrica stabila de 230 V / 50 Hz cu protectie corecta (impamantare; nul de retea, etc)
Daca nu este utilizat o lunga perioada de timp deconectati cazanul de la reteaua electrica.
Camera cazanului trebuie mentinuta curata si fara praf. Trebuie indepartate din camera cazanului
toate sursele de praf si cazanul trebuie oprit in timpul executarii operatiilor care l-ar putea murdari cu praf.
Murdaria scade randamentul si fiabilitatea in functionare a cazanului.
Daca exista pericolul de producere sau patrundere a gazelor de ardere in camera cazanului, sau se
executa lucrari care ar putea sa mareasca pericolul declansarii unui incendiu sau explozii, cazanul
trebuie sa fie scos din functiune inainte de a incepe aceste lucrari.
Este interzisa amplasarea materialelor combustibile pe cazan sau la o distanta inferioara celei de
siguranta fata de cazan.
Instalarea, pornirea cazanului si reparatiile pot fi realizate numai de centrele service scolarizate de
producator.
La cazan trebuie sa se realizeze o data pe an operatiile de intretinere uzuala.
9. Intretinere
Instalarea, pornirea cazanului si reparatiile pot fi realizate numai de centrele service scolarizate de producator.
Deconectati cazanul de la reteaua electrica.
Intrerupeti alimentarea cu gaz a cazanului
Indepartati mantaua frontala
Intrerupeti alimentarea arzatorului cu gaz.
Deconectati cablurile electroventilelor si ale electrozilor.
Demontati placa arzatorului de pe corpul cazanului.
Scoateti arzatorul din camera de ardere.
Scoateti capacul si izolatia.
Desurubati capacul colectorului de gaze arse
Verificati suprafata de incalzire a cazanului si efectuati spalarea chimica (de exmeplu cu METANOTHERM)
introduceti in toate orificiile solutie de curatare si lasati sa actioneze 10 minute
utilizati spray chimic pe suprafata de incalzire
indepartati impuritatiile din zona arzatorului
verificati rampele arzatorului
montati arzatorul, alimentarea cu gaz si racordurile la vane
fixati mantaua coenctorului de gaze arse
puneti partea superioara a mantalei
verificati etansarea alimentarii cu gaz in timpul functionarii
Verificati
filtrul vanei de gaz multibloc. Schimbati-l daca:
![]()
diferenta dintre presiunea de gaz la intrarea si la iesirea din vana multibloc (vezi figura 21.) este mai mare de 10 mbar
presiunea pe prizele de masura (intrarea si iesirea din vana multibloc) va creste dublu fata de ultimul control.
Procedura de schimbare a filtrului (se poate executa fara demontarea fitingurilor):
inchideti vana, intrerupeti alimentarea cu gaz
desurubati cu cheia inbus nr. 3 cele 4 suruburi si scoateti carcasa filtrului
scoateti cartusul filtrului si introduceti unul nou
puneti la loc carcasa filtrului, strangeti toate cele 4 suruburi
verificati functionalitatea si etansarea
In cazul in care filtrul trebuie schimbat frecvent se recomanda inlocuirea suruburilor uzuale cu suruburi M 4x14 cu filet metric.

Suruburi cu cap hexagonal ingropat
pentru strangerea carcasei filtrului
Carcasa filtrului
Suruburi cu cap hexagonal ingropat
pentru strangerea carcasei filtrului
Introducerea filtrului
Figura 27. Schimbarea filtrului
Defectiuni si remedii
Reparatiile pot fi efectuate numai de catre service autorizat scolarizat de firma producatoare. Utilizatorul final poate efectua reparatiile indicate cu simbolul " ".
![]()

|
DEFECTIUNI |
CAUZE |
SIMBOL |
REMEDII |
|
1. Dupa pornirea cazanului nu se aprinde lampa de semnalizare de pe intrerupatorul principal |
Cazanul nu est alimentat cu tensiune |
Verifciati prezenta tensiunii Verificati siguranta fuzibila |
|
|
Lampa de semnalizare defecta |
Schimbati intrerupatorul sau becul |
||
|
2. Cazanul nu poate fi pornit - arzatorul pilot nu se aprinde - nu este scanteie |
Defectiune automatizare |
Verificati automatul de ardere |
|
|
Cablurile catre electrodul de aprindere intrerupte |
Verificarea conexiunilor electrodului de inalta tensiune |
||
|
Electrodul de apridere este prost pozitionat |
Corectarea pozitiei |
||
|
Transformatorul defect |
Schimbat transformator |
||
|
3. Cazanul nu porneste - arzatorul pilot nu se aprinde: prezinta scanteie lipsa flacara |
Intreruperea alimentarii cu gaz |
Verificati presiunea de alimentare cu gaz |
|
|
Verificati dispozitivul de deschidere/inchidere a gazului catre cosumator |
|||
|
Aer in conducta cu gaz |
Eliminati aerul |
||
|
Electroventilul nu se deschide |
Schimbati vana de aprindere a arzatorului |
||
|
4. Electrodul de aprindere emite scanteia - arzatorul nu produce flacara |
A patruns aer in conducta dintre vana de gaz multibloc si arzator |
Eliminati aerul |
|
|
Arzator defect |
Schimbati arzatorul |
||
|
Conducta de alimentarea cu gaz dintre vana de gaz multibloc si arzator este deteriorata |
Verificati si reparati racordurile |
||
|
5. Arzatorul pilot are flacara - arzatorul principal nu porneste - pe tabloul de comanda se aprinde lampa de semnalizare "avarie" |
Nu se cupleaza prima treapta a vanei de gaz multibloc |
Schimbati vana multibloc |
|
|
Automatizare defecta |
Schimbati automatul de ardere |
||
|
6. Cazanul porneste si se opreste dupa o scurta perioada de timp si pe tabloul de comanda se aprinde semnalizare "avarie" |
Conectare gresita a conductorilor de nul si faza |
Verificati si schimbati conexiunile Clema U - conductor de faza Clema N - conductor de nul |
|
|
Filtrul de impuritati, pozitionat inaintea electroventilului, este colmatat |
Curatati filtrul, pozitionat inaintea electroventilului |
||
|
7. Se aprinde lampa rosie de semnalizare pentru controlul de etanseitate (daca este conectata) - electrodul de aprindere emite scanteie - arzatorul pilot nu porneste |
Cuplarea sistemului de etanseitate la vana multibloc nu este etansa. |
Verificati etansarea |
|
|
Schimbati vana multibloc |
|||
|
Dupa control efectuati resetarea prin butonul rosu |
|||
|
8. cazanul nu poate porni - oprirea prin termostatul de siguranta (pe tabloul de comanda se semnalizeaza supraincalzirea) |
Termostatul de siguranta a sesizat cresterea de temperatura |
Deblocarea se efectueaza prin resetarea de la panoul de comanda TB |
|
|
Apa putina in circuit |
Verificati presiunea apei in circuit si eventual umpleti circuitul cu apa |
||
|
Verificati vasul de expansiune (daca este plin sistemul de incalzire se poate utiliza) |
|||
|
Circulatie slaba a apei in sistemul de incalzire |
Verificati functionarea pompelor |
||
|
9. blocarea termostatelor de gaze arse |
Cos infundat |
Curatati cosul |
|
|
Vantul puternic poate inversa sensul de parcurgere al gazelor arse |
Deblocati termostatul gaze arse prin butonul "DEBLOCARE" de pe panoul de comanda |
Defectiunile de functionare a
regulatoarelor RVA sunt descrise in documentatia tehnica a acestor regulatoare.
![]()
11. Garantie
Producatorul elibereaza garantie de 24 de luni de la data expedierii cazanului.
ROMSTAL,
Bucuresti, Sos. Vitan-Barzesti 11A, sector 4 tel/fax:
(021) 332.09.01, (021) 334.94.63 E-mail: office@romstalb.ro Internet: www.romstal.ro

|
Politica de confidentialitate | Termeni si conditii de utilizare |
Vizualizari: 3347
Importanta: ![]()
Termeni si conditii de utilizare | Contact
© SCRIGROUP 2026 . All rights reserved