| CATEGORII DOCUMENTE |
| Aeronautica | Comunicatii | Electronica electricitate | Merceologie | Tehnica mecanica |
1* Sisteme cu o singura conducta si debit de aer constant. DAC
2* Sisteme cu o singura conducta si debit de aer variabil. DAV
3* Sisteme cu inductie.
4* Sisteme cu doua conducte.
Sistem de climatizare cu o conducta
si debit de aer constant
distribuie aerul tratat, cald sau rece direct in incaperile de climatizat prin intermediul gurilor de refulare.
Se pot diviza in mai multe zone de refulare, fiecare zona fiind dotata, in functie de caracteristici, cu aparate locale pentru incalzire si/sau racire sau cu ventilatoare zonale.
16.1.1 Sisteme compacte
Figura 16.1. Schema de principiu a aparatului de fereastra
Un sistem este compact daca ansamblul
echipamentelor centrale, terminale si intermediare sunt grupate in interiorul
unui ansamblu monobloc. Din aceasta categorie se disting: aparate de
climatizare individuale (de fereastra sau sistem split), figura 16.1.;

aparat de fereastra pentru racirea uneia sau mai multor incaperi fara controlul umiditatii, cu racirea condensatorului cu aer; aparat pentru racirea aerului cu masina frigorifica inglobata avand racirea condensatorului cu apa de la retea; aparat local de racirea aerului in sistem SPLIT.
Toate aparatele prezentate pot fi echipate cu baterie de incalzire electrica (B.I.E.) pentru functionare iarna sau in sezon de tranzitie;
Aparatele pot functiona in regim de pompa de caldura prin inversarea circuitului frigorific.
Avantaje: Dezavantaje:
* spatiul ocupat de instalatie este foarte redus; * Zgomotul mecanismelor in miscare
* pot fi montate la plafon sau in plafon fals. (reducerea acestuia prin sistem SPLIT)
* nu asigura reglajul umiditatii.
Caracteristici:
Permite racirea aerului cu 8-10 0C pentru o temperatura exterioara de 30 32 0C; puterea
nominala intre 0,5 2,2 kW ceea ce inseamna ca poate dezvolta o putere frigorifica efectiva de 2 7 kW; debite medii vehiculate 300 10000 m2/h, reglaj asigurat de doua, trei trepte de viteza.
![]() |
Racirea apei se face in turnuri de racire montate pe acoperis.
Caracteristici: debite de aer 1000 20000 m3/h; putere frigorifica 7 140 kW; reglare automata pentru regim de vara sau iarna, asigurand incalzirea, racirea si umidificarea aerului prin introducerea unui aparat suplimentar de umidificare cu abur.
Utilizari: incaperi mari: sali de calculatoare, sali de reuniuni, magazine restaurante, localuri comerciale; incaperi mici: birouri, buticuri, apartamente, case individuale.
Aceste aparate pot fi utilizate in regim de pompa de caldura, pentru care se prevede un inversor de sens pe circuitul frigorific. In acest caz dulapuri de climatizare poate incalzi fara B.I., caldura cedata de condensator fiind de multe ori suficienta pentru incalzirea incaperii.
Cele doua tipuri de echipamente monobloc constituie sisteme de climatizare compacte. In interiorul aceleasi incaperi se gasesc grupate echipamente de preparare a agentului primar, aer cald sau aer rece, si echipamente terminale care introduc acest aer direct in incapere (ventilatoare, conducte, guri de refulare).
16.1.2. Sisteme disociate
Prin sisteme disociate se inteleg tipurile de instalatii de climatizare in care tratarea aerului primar este disociata de distributia acestuia in incaperi (aparate terminale).
Aceste sisteme pot fi: sisteme unizone sau sisteme multizone.
Sistemul de climatizare unizonal distribuie aer de aceiasi parametri in toate incaperile unde este distribuit. Poate fi aplicat la o singura incapere sau mai multe dar cu sarcini termice identice. Asigura un debit de aer constant iar temperatura este reglata printr-un termostat de ambianta.
Cuprinde: echipamente pentru tratarea aerului (centrala de climatizare); echipamente terminale- guri de aer; echipamente intermediare (canale, clapete, grile); echipamente de reglaj.
Formata din module, fiecare modul avand o anumita functiune in procesul de tratare complexa:
A. camera de amestec cu doua racorduri;
B. filtrarea aerului amestecat;
C1 preincalzire- iarna;
F camera de umidificare cu apa (adiabatic);
E racirea aerului amestecat (vara);
C2 reincalzirea aerului (in toate sezoanele)- cu apa calda sau baterie electrica;
D1 distributia aerului (ventilator de introducere).


C1
Centrale de climatizare pot fi montate si in exteriorul cladirii (exemplu pe acoperis) figura 16.4., avand aceeasi alcatuire ca cele prezentate anterior.


Racirea se realizeaza prin mai multe baterii de racire cu detenta directa alimentate cu cel putin doua grupuri de racire cu compresie. Fiecare grup alimenteaza toate bateriile de racire instalate pentru a permite un reglaj precis al temperaturii aerului si pentru siguranta functionarii in cazul caderii unui compresor. Racirea condensatoarelor se face cu aer, cu ajutorul unor ventilatoare axiale.
Functiuni: Centrale de tratare a aerului montate in exterior permit: ventilarea mecanica a incaperilor (VM controlata); ventilarea si incalzirea iarna; ventilarea si racirea vara; climatizarea aerului (ventilare, incalzire, racire si umidificare).
In sisteme cu un singur canal de aer si debit constant, aerul tratat este introdus in incapere cu viteze mici printr-o retea de canale si guri de refulare de perete sau plafon sau prin difuzoare de plafon care pot refula si aspira in acelasi timp.
Caracteristici: putere frigorifica 6 60 kW; putere calorifica 30 350 kW; debit de aer 3500 60000 m3/h.
Amplasare: la sol sau acoperis (terasa)
Avantaje: spatiu de amplasare mai ieftin, fiind afara (nu necesita spatiu afectat in constructie); prezinta o autonomie mai mare si instalatii aferente mai mici deci cost mai mic; grupurile frigorifice sunt racite direct deci autonome; pot folosi ca agent incalzitor gaz combustibil electric; reteaua de conducte poate fi mai scurta.
Dezavantaje: puteri limitate; amplasarea lor pe terasa creeaza probleme (este generatoare de zgomot); expunerea in aer liber creeaza probleme de exploatare (costuri mai ridicate fata de centralele interioare).
In cazul in care localurile climatizate nu prezinta sarcini termice asemanatoare sau variatii mari ale acestor sarcini este posibila utilizarea sistemelor unizonale cu debit si temperatura constante (DAC) cu conditia prevederii la intrarea in incapere a unei baterii de incalzire terminale ca sa regleze temperatura aerului refulat in functie de necesitatile incaperii.

Functionare:
Centrala de tratare a aerului, CTA, distribuie aer primar cu debit si temperatura constanta in fiecare incapere. La intrarea in fiecare incapere (sau zona) se prevede un dispozitiv (baterie) de reincalzire a aerului primar, montat pe conducta de aer primar.
Vara: Anumite incaperi (cu ocupanti mai multi, cu vitraj mai mare, etc.) pot avea degajari mai mari deci sarcina frigorifica mai mare care cer o temperatura de refulare mai mica. Aceasta defavorizeaza incaperile cu sarcini termice normale. Pentru acestea din urma bateria zonala incalzeste aerul primar la temperatura de confort.
Iarna: Poate asigura necesarul de caldura astfel incat temperatura aerului interior sa fie in limitele de confort, in functie de necesitatile incaperii.
Acest sistem unizonal cu baterii de incalzire zonale poate mentine in toate incaperile: o temperatura interioara precisa datorita unui termostat de ambianta care regleaza puterea calorica a bateriei terminale; o variatie a umiditatii satisfacatoare in conditiile in care sarcinile de umiditate nu au variatiile foarte mari.
Incalzitorul (reincalzitorul) terminal il poate constitui: o baterie electrica reglata de un termostat de ambianta; o baterie au apa calda sau abur al carei ventil cu servomotor este comandat de un termostat de ambianta.
Sistemul de reglare este de tip cu actiune proportionala si comandat electric, electronic
sau pneumatic.
Reincalzirea terminala montata in sistemele unizonale se poate comporta, pe anumite zone
si ca un dispozitiv de reglare a debitului refulat in incapere printr-un regulator de presiune. La cresterea lui ti termostatul comanda inchiderea ventilului bateriei deci scaderea temperaturii de refulare deoarece prin comanda regulatorului de presiune debitul este constant.
Utilizari: incaperi cu sarcini termice diferite; sisteme de climatizare aer-apa in care sistemul unizonal reprezinta surse de aer primar.
Sisteme multizonale cu sau fara reincalzire terminala sunt utilizate pentru climatizarea cladirilor in care: fiecare grup de incaperi sau zone necesita un reglaj particular si independent, fiecare zona are sarcini specifice si diferite fata de alte zone, practic utilizarea acestor sisteme fiind nelimitata (ex.: cladiri administrative cuprind: birouri, sali de reuniune, sali de ordinatoare si arhive, restaurante, sali de relatii cu publicul; mari magazine: incaperi depozit si de vanzare, raioane de relatii cu publicul, incaperi administrative, birouri; mari hoteluri: camere, sali de receptie, restaurante, sali de mese, etc.; ansamble de sali de spectacole: care regrupeaza mai multe sali cu ocupatie variabila la diferite ore din zi; clinici, spitale; scoli, universitati.
Descriere: centralele multizone sunt sub forma compacta avand aceleasi elemente componente ca o centrala unizona clasica. Dispunerea echipamentelor poate prezenta anumite particularitati:
10 asezarea BR si BI nu se mai face in serie. Aerul cald si rece este trimis prin canale paralele.
20 ventilatorul de introducere este asezat inainte de cele doua baterii;
30 debitul de aer refulat este constant iar proportia de aer rece este reglata la sesizarea termostatului de zona obtinandu-se astfel temperaturi diferite pentru fiecare zona.
Figura 16.6 Schema de principiu a unei centrale multizone
Functionare: aerul cald si rece este produs in centrala la o temperatura constanta. Temperatura de plecare in fiecare zona este reglata automat de un termostat de ambianta care comanda clapetele de reglaj de pe fiecare parte, aer cald, aer rec, amestecul avand temperatura necesara pentru introducerea in incapere.
Centrala multizona are o mare suplete in functionare permitand o independenta pentru fiecare zona. O reincalzire terminala poate fi prevazuta in cadrul aceleiasi zone.
Pentru o functionare corecta:
delimitarea zonelor cu mult discernamant (gruparea in aceeasi zona a incaperilor cu aceeasi expunere; se va evita gruparea in aceeasi zona a incaperilor cu diferente mari de la una la alta);
debitele de aer pentru fiecare zana sa fie sensibil egale;
se va evitadeservirea unui numar mare de zone, optim 10
Caracteristici: numar de zone 6 20; putere frigorifica 35 460 kW, calorica 1200 kW; debite de aer pana la 100000 m3/h.
cu sarcini variabile aer cu temperatura constanta dar debit variabil, in functie de sarcinile de compensat in fiecare incapere. Sistemul poate introduce in incapere cantitatea de aer indispensabila si necesara pentru obtinerea conditiilor de confort cu economie maxima de energie.
Principiu: Qv variaza orar; ti si ji pot fi mentinute constante daca L este variabil, proportional cu Q, adica:
deci adoptarea debitului de aer refulat la sarcinile termice si de umiditate variabile ale incaperii.
Pentru variatia debitului in incaperile climatizate se utilizeaza: clapete de aer sau unitati terminale de refulare care sa asigure un amestec suficient de bun in cazul debitelor mari cat si a celor mici.
Variatia debitului in instalatie se poate asigura: fie cu un ventilator cu debit sensibil constant daca variatiile de debit in instalatie sunt mici sau cu un ventilator cu turatie variabila, in caz contrar.
Sistemele DAV pot fi utilizate numai sau in legatura cu alte sisteme de climatizare
independente. Astfel un sistem DAV poate asigura numai climatizarea incaperilor care au nevoie de racire in tot cursul anului, incaperile climatizate si incalzite vor folosi un alt sistem de climatizare. Aceste sisteme pot fi utilizate si cu reincalzire terminala electrica, cu abur sau apa calda.
Adoptand criteriu de clasificare principiul de functionare sistemele DAV se pot clasa in 4 categorii:
a. Sistem DAV fara reincalzire terminala;
b. Sistem DAV cu reincalzire terminala;
c. Sistem DAV cu impulsuri de aer;
d. Sistem DAV asociat cu un alt sistem de climatizare independent.
Sistem cu debit variabil fara reincalzire terminala este cel mai simplu DAV; permite racire si/sau incalzirea incaperilor fara sa fie posibila incalzirea si racirea simultana a diferitelor zone ale cladirii; singur este folosit mai rar, dar adesea cuplat cu alt sistem de climatizare. Cuprinde urmatoarele echipamente:
10 O centrala de tratare a aerului de tip unizona, instalata in interiorul sau exteriorul
cladirii si care permite: amestecul de aer exterior si interior; filtrarea aerului amestecat; preincalzirea aerului amestecat iarna; umidificarea aerului amestecat cu apa recirculata sau abur; racirea aerului vara sau tot timpul anului (in acest caz umidificarea si preincalzirea nu mai sunt prevazute) cand centrala functioneaza ca un racitor de aer destinat climatizarii incaperilor care au nevoie de racire tot timpul anului; distributia aerului catre incaperi cu ajutorul unui ventilator cu debit constant sau variabil.
20 O retea de canale cu viteze mici (2 6 m/s) sau medie distribuind (6 15 m/s) aerul catre fiecare zona. Debitul este modulat prin clapete actionate de un servomotor sesizat de un termostat de zona sau de ambianta.
30 Difuzoare de aer terminale ce permit o repartitie corecta a aerului refulat maxim sau
minim. Tipuri de difuzoare: difuzoare de aer cu sectiune de refulare constanta si reglabila de sectiune liniara, circulara sau rectangulara. Reglajul debitului se asigura prin clapete montate in amonte de difuzor si sesizate de un termostat de ambianta; difuzoare de aer cu sectiune variabila unde variatia debitului se face prin clapete incorporate, automat comandate.
Conditia de functionalitate este ca presiunea efectiva in reteaua de distributie sa fie constanta. O instalatie de climatizare cu debit variabil trebuie sa permita asigurarea unei variatii a debitului in raport de 1 la 3 (adica intre 30% si 100% din debitul maxim).
Se poate realiza prin: reglarea ventilatoarelor; reglarea presiunii efective in retea; reglarea debitului minim de ventilare; reglarea aerului recirculat.
Un sistem DAV trebuie sa functioneze intre doua valori limita in functie de aparatele (difuzoarele) utilizate:
o presiune minimala la intrarea in difuzoarele de aer 250 Pa si necesara pentru asigurarea unei reglari automate corecte;
o presiune efectiva maxima care nu trebuie sa fie depasita pentru a nu produce zgomot la nivelul clapetelor.
Pentru controlul plajei variatie a presiunii se utilizeaza in general doua captatoare de presiune legate la un releu de avertizare a dispozitivului ce permite variatia debitului ventilatoarelor de introducere.

Reglajul debitului recirculat legat de debitul de aer aspirat din incapere este important pentru a nu creea suprapresiuni sau depresiuni excesive in incaperile climatizate.
Permit refulare de aer cu debit si temperatura variabila. Aerul este refulat prin inductoare montate in plafon sau in pervazul ferestrei, si este amestecat prin inductie cu aerul din incapere obtinandu-se caracteristicile de debit si temperatura adoptate sarcinilor termice ale fiecarei incaperi. Prin acest sistem se recupereaza caldura din sarcina termica a incaperii.
Principiu de functionare: aerul primar, rece este preparat intr-o centrala- unizona sau multizona si este trimis spre incaperile climatizate printr-o retea de canale de distributie de mare viteza (10 20 m/s). Introducerea aerului se face prin aparate terminale inductoare. Debitul de aer si temperatura acestora sunt variabile in functie de sarcinile termice a fiecarei zone (sau incaperi) comandate de un termostat de ambianta.
Sistemul cuprinde o centrala de tratare a aerului avand in componenta: cutie de amestec aer exterior si recirculat; filtru de aer; baterie pentru racirea aerului amestecat 12 0C; baterie de subracire (sarcini termice mari vara, 5 0C), folosind grup de racire cu apa rece sau detenta directa pentru racirea aerului amestecat la 10 12 0C, si grup de subracire cu apa +glicol sau detenta directa pentru aer de +3 5 0C; ventilator pentru vehicularea aerului catre inductoare (ventilatoare cu pale inapoi sau ventilatoare pentru fiecare zona), figura 16.8.
Reteaua de canale de viteza medie 7 15 m/s sau de mare viteza 15 20 m/s, distribuie aerul primar, rece, inductoarelor fiecarei zone (incaperi). Au sectiune circulara si diametre mici.
Inductoarele terminale cu sau fara incalzire sunt comandate de un termostat de ambianta (figura 16.9.).
Figura 16.9 Inductor tip Barber- Coleman
In incaperile interioare care necesita racire tot timpul anului aceste inductoare asigura singure ventilarea si racirea acestor incaperi. In incaperile periferice supuse influentei climatului exterior aceste aparate nu pot asigura incalzirea in timpul iernii si pentru aceasta se folosesc sisteme independente de incalzire sau inductoare cu incalzire terminala.
In functie de posibilitatile de incalzire inductoarele pot fi montate in parapetul ferestrelor
si pot fi folosite la incalzirea incintelor periferice, sau montate in plafon. Se pot folosi baterii de incalzire cu apa calda, cu abur de joasa presiune si frecvent electrice.
Difuzoarele de aer ce asigura o repartitie uniforma atat a debitului maxim cat si al celui minim pot fi incorporate in inductoare sau independente de inductoare.
Reprezinta o extindere a sistemului cu un canal de aer si inductie. Aerul rece si cald este distribuit in incaperi prin doua canale paralele si cutii de amestec (aparate de amestec). Poate sigura simultan incalzirea si racirea incaperilor.
Permite o mare fiabilitate in functionare:
reglarea parametrilor in fiecare incapere;
refularea de aer cu parametri diferiti, simultan;
climatizarea simultana a incaperilor cu sarcini variabile si diferite;
nu se creeaza perturbari in perioadele de tranzitie.
La nivelul fiecarei incinte sau zone conditiile de confort sunt satisfacute temperatura si umiditatea ambiantei fiind mentinute constante la valorile prescrise;
Distributia aerului refulat in incapere este independenta de distributia aerului cald si rece in aparatele de amestec;
Sistemul permite o posibila extensie a instalatiilor existente, aparatele de amestec suplimentare nu afecteaza echilibrul retelei;
Centralizarea operatiilor de tratare a aerului este completa ceea ce conduce la o conceptie simpla a instalatiei;
Utilizarea rationala a aerului exterior duce la importante economii de energie;
Practic sistemul poate fi aplicat la toate tipurile de constructii.
Dezavantaje:
Pret de investitie ridicat rezultat din:
existenta a doua retele de canale;
numar important de aparate de amestec;
disponibil de presiune ridicat pentru ventilatoare pentru realizarea presiunilor inalte si a vitezelor mari;
masuri inevitabile pentru reducerea nivelului de zgomot;
dublul reglaj al presiunii pentru aer rece si pentru aer cald;
spatii suplimentare.
Cost de exploatare ridicat din mentinerea instalatiei in functiune in perioadele de nefunctionare;
Constructii adiacente pentru crearea spatiilor de montaj a canalelor si a aparatelor de amestec.
Sistemul de climatizare cu doua canale cuprinde: o centrala de tratare a aerului, unizonala (sau pentru cladirile inalte mai multe centrale pe diferite zone de inaltime) in exterior sau interiorul cladirii, ce permite succesiv: amestecul de aer exterior si interior; filtrarea aerului amestecat; preincalzirea aerului exterior sau amestecat; umidificarea; ventilator care asigura distributia aerului catre canalele de aer rece si cald (ventilatoarele), o retea de canale de aer cald de mare viteza (13 30 m/s) catre aparatele de amestec, pe care se pot prevedea: umidificare, reincalzire, un tratament acustic de reducere a nivelului de zgomot, o retea de canale de aer rece de mare viteza ce alimenteaza aparatele de amestec pe care se pot prevedea: umidificare, o racire,
un tratament acustic, figura 16.10 si aparate de amestec racordate la canalele de aer rece si aer cald. Acestea au rolul: de detenta a aerului cald si rece de inalta presiune si mare viteza; de amestec a aerului cald si rece la indicatiile unui termostat de ambianta; de reglaj a debitului refulat in incaperi si de reducere a nivelului de zgomot, figura 16.11. .

Figura 16.11 Schema de principiu a unui aparat de amestec cu debit constant si
temperatura de refulare variabila
Dupa aparatele de amestec aerul este distribuit in incaperi printr-o retea de canale de
viteza mica si difuzoare sau guri de aer.
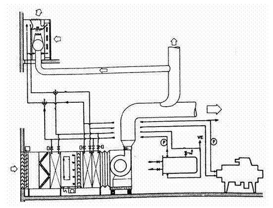
Aceste sisteme folosesc apa-calda sau rece- preparata centralizat, pentru transportul energiei termice sau frigorifice spre incaperile climatizate, in functie de sezon. Apa este pompata si distribuita in aparate terminale prin intermediul a doua trei sau patru conducte, fig. 16.12.
Sistemul cel mai utilizat , in care fluidul primar este apa, este sistemul cu ventilo-convectoare (mai poate fi sistemul de racire prin plafon radiant).
Sistem cu patru conducte 2
baterii separate Baterie
comuna Sistem cu trei conducte (distributie apa calda, distributie apa rece, retur comun Vana de reglaj electrica sau pneumatica Vana de reglaj electrica sau pneumatica Sistem cu doua conducte (baterie comuna)

Fig. 16.12
Posibilitati de racordare a ventilatoarelor si variante
de reglaj a debitului de agent termic
Sistemul de climatizare cu ventilo-convectoare este adaptabil oricarei cladiri de tip admistrativ (birouri), hoteluri etc., in care incaperile pot avea sarcini termice diferite iar in perioadele de tranzitie (primavara, toamna) anumite zone pot fi alimentate cu apa rece iar altele cu apa calda. Aceasta depinde de numarul de conducte de alimentare si de o reglare de ansamblu destul de complexa. Un alt avantaj al acestui sistem este acela ca in perioada rece si de nefunctionare a ventilo-convectorului (noaptea sau repaus saptamanal) bateria acestuia cedeaza caldura prin convectie naturala asigurand o anumita temperatura de garda evitand astfel subracirea incaperii.
Elementele componente ale unui astfel de sistem sunt:
unul sau mai multe generatoare de apa calda;
unul sau mai multe generatoare de apa rece;
reteaua de conducte formata din doua tevi sau patru conducte;
aparatul terminal, ventilo-convectorul, echipat cu un dispozitiv manual sau automat ce permite alimentare cu apa calda sau rece intr-un sezon.
Ventiloconvectorul este un aparat compact permitand asigurarea climatizarii unei incaperi. Este echipat, fig. 16.13, astfel incat sa asigure urmatoarele functiuni:
filtrarea aerului recirculat si a aerului proaspat ce intra in aparat;
incalzirea sau racirea aerului amestecat;
uscarea aerului amestecat;
refularea in incapere a aerului amestecat;

Fig. 16.13 Schema de principiu a unui ventilo-convector.
Dupa locul de montare ventilo-convectoarele sunt: de tip cabinet, ce se pot monta in parametrul ferestrei; de perete sau de plafon, fig. 16.14, c.
Caracteristici generale pentru ventilo-convectoare:
putere calorifica cuprinsa intre 1,2.23kW;
putere frigorifica cuprinsa intre 0,6.12kW;
debite de aer vehiculat intre 150.1000 m3/h, cu unul sau doua ventilatoare prevazute cu 2.4 trepte de turatii;
![]()
nivel de zgomot la
viteza maxima intre 42.56 dB.
convectoare in plafon sau in plafon fals
![]() |
Ventilo-convectoarele pot fi construite si cu o masina frigorifica inglobata si/sau cu bateria electrica pentru incalzire.
16.5 Sisteme de CLIMATIZARE AER-apa
Intr-un astfel de sistem de climatizare, incalzirea, racirea si controlul umiditatii unei incaperi sunt realizate pe de o parte cu aer primar tratat intr-o centrala de climatizare si pe de alta parte cu ajutorul apei calde sau reci.
Sistemul este alcatuit din (fig. 16.15):
centrala de tratare a aerului primar care de regula se dimensioneaza pentru debitul minim de aer proaspat ce trebuie adus in fiecare incapere;
sursa de apa calda pentru incalzire;
sursa de apa rece pentru racire;
retea de canale pentru distributia aerului primar;
retea de conducte (doua, trei sau patru conducte) pentru distributia apei calde sau reci;
Aer exterior
Preparator
de apa rece
de caldura
![]() |
|
|
|
Fig. 16.15 Schema de principiu a ejecto-convectorului de tip aer-apa cu doua tevi.
Pentru sistemele ce folosesc ventilo-convectoarele ca aparate terminale aerul primar ajunge in aparat printr-o retea de canale si se amesteca cu aerul recirculat, este incalzit sau racit dupa care este refulat in incapere.
In sistemele care folosesc aparatele de inductie aerul primar tratat (numai aer exterior) este trimis cu viteza mare si debit constant pana la ejecto-convector. Iarna aerul primar este umidificat.
In interiorul acestui aparat aerul primar sub presiune este refulat prin diuze ceea ce produce un efect de apiratie rin inductie a arului din incaperea unde se afla ejecto-convectorul. Aerul astfel aspirat traverseaza un filtru, apoi o baterie prin care circula apa calda iarna sau apa rece vara.
Aerul primar se amesteca cu aerul recirculat, incalzit sau racit si apoi este refulat in incapere la debit constant si cu o temperatura variabila.
Reglajul temperaturii aerului refulat este obtinut fie regland debitul de apa ce circula prin baterie cu ajutorul cabinetelor de reglaj fie prin variatia debitului de aer indus cu ajutorul unei clapete de reglaj motorizata. Cele doua organe de reglaj sunt actionate de un termostat de ambianta.
Schema de principiu a unui ejecto-convector este prezentata in figura 16.16. Pentru a-si indeplini functiile principale acesta este echipat cu:
diuze de refulare;
admisie de aer recirculat indus;
filtru de aer pentru aerul recirculat;
baterie de incalzire sau racire a aerului recirculat sau amestecat;
Admisie de aer primar
Aer recirculat
![]() |
reglajul debitului de aer primar;
reglajul debitului de aer recirculat;
tevi de inductie;
colectare condens;
baterie de incalzire sau racire;
filtru;
termostat de ambianta.
Fig. 16.16 Schema de principiu a unui ejecto-convector.
Toate acestea sunt introduse intr-o carcasa metalica avand la interior o protectie fonoabsorbanta.
Ca si ventilo-convectoarele, ejectoconvectoarele pot fi montate in parapetul ferestrei sau in plafon.
Caracteristici. Caracteristica principala a unui ejecto-convector este nivelul de inductie prin care se intelege raportul dintre debitul masic de aer indus si debitul masic de aer primar admis in aparat:
Acest raport este o caracteristica a aparatului cand presiunea aerului primar la nivelul diuzelor ramane relativ constanta. Pentru gama obisnuita de aparate aflate in fabricatie nivelul de inductie este cuprins intre 1,5 si 5.
Debitul de aer primar variaza intre 25 si 300 m3/h. Presiunea medie necesara la diuze, variaza intre 250 si 1500 Pa. Puterea frigorifica nominala a bateriei de racire este cuprinsa intre 0,4 si 3,5 kW iar puterea nominala a bateriei de incalzire, intre 0,8 si 7kW.
|
Politica de confidentialitate | Termeni si conditii de utilizare |
Vizualizari: 3382
Importanta: ![]()
Termeni si conditii de utilizare | Contact
© SCRIGROUP 2025 . All rights reserved